Stubbs Lane, Noctorum
By Brennan Ayre O'Neill
£ 265,000
Reviews
4 out of 5 stars
Brennan Ayre O'Neill says ..
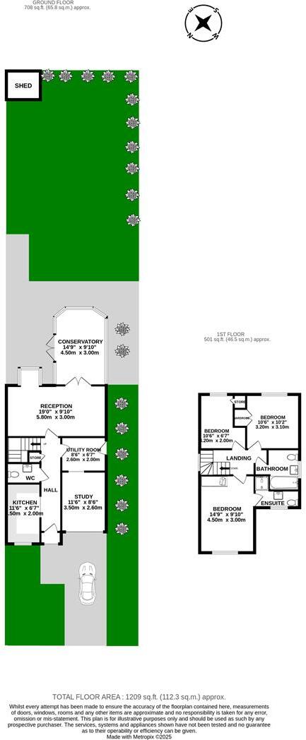
If we may draw you attention immediately to the rear of this detached home you can see, even at the end of March, how sunny the back of the house is going to be, how private and not overlooked it is too. With a substantially long rear garden, (even when taking into account the conservato...
Property Oracle says ..
This property is located in Noctorum, Wirral, a generally desirable area within easy reach of local amenities and transport links. The property itself appears to be in good condition, well-maintained, and recently updated. The images show a modern interior with a conservatory and a garden, adding to its appeal. While specific square footage is not provided, the asking price of £265,000 aligns reasonably well with the average price in the area, considering its apparent condition and features.
Therefore, we give this property 8 / 10. *Disclaimer: This is our option and does constitute a recommendation or financial advice. Do your own research. *
- Price
- 8
- Condition
- 9
- Location
- 8
- Land
- 7
- Bedrooms
- 3
- Bathrooms
- 2
The heatmap indicates the level of crime in the area. The color of the heatmap indicates the crime severity and recency.
Metrics Year-on-Year
- Average area value
- 326,923.00 £Increased by 8.27 %
- Average area rental value
- 756.00 £/moIncreased by 3.42 %
- Est rental Yield
- 2.77 %Decreased by 4.81 %
- Crime Rate
- 2.00 %Unchanged by 0.00 %
Agent Activity
Brennan Ayre O'Neill marked this listing as sold.
Brennan Ayre O'Neill created the listing.
Nearby Schools
| Name | Type | Ofsted | Distance |
|---|---|---|---|
| Townfield Primary School | Academy Converter | Good | 0.50 KM |
| Ridgeway High School | Foundation School | Requires improvement | 0.68 KM |
| Woodchurch High School | Academy Converter | Good | 0.85 KM |
| St Michael And All Angels Catholic Primary School | Voluntary Aided School | Good | 0.86 KM |
| Foxfield School | Community Special School | Good | 0.88 KM |
Images
Nearby Streets
| Name | Average Price | Average Sqft | Distance |
|---|---|---|---|
| Stretton Close | £ 250,000 | 0 | 0.00 KM |
| Hargrave Avenue | £ 155,000 | 0 | 0.00 KM |
| Edgefield Close | £ 0 | 0 | 0.00 KM |
| Hartford Close | £ 0 | 0 | 0.00 KM |
| Ollerton Close | £ 0 | 0 | 0.00 KM |
Nearby Transport
| Name | NLC | TLC | Distance |
|---|---|---|---|
| Upton (Merseyside) | 2141 | UPT | 2.07 KM |
| Birkenhead North | 2145 | BKN | 3.31 KM |
| Bidston | 2136 | BID | 3.79 KM |
| Birkenhead Park | 2220 | BKP | 3.97 KM |
| Leasowe | 2237 | LSW | 4.92 KM |
Nearby Listings
| Address | Price | Type | Score | Distance |
|---|---|---|---|---|
| Stubbs Lane, Noctorum | £ 265,000 | BUY | 8 / 10 | 0.00 KM |
| Stubbs Lane, Prenton, Wirral | £ 375,000 | BUY | 7 / 10 | 0.07 KM |
| Hogarth Drive, Prenton | £ 425,000 | BUY | Unknown | 0.12 KM |
| Palmer Close, Prenton, Wirral | £ 350,000 | BUY | 6 / 10 | 0.18 KM |
| Waverton Avenue, Prenton, CH43 | £ 245,000 | BUY | 6 / 10 | 0.23 KM |
Nearby Properties
| Address | Price | Distance |
|---|---|---|
| 5 Ruskin Way | £ 230,000 | 0.07 KM |
| 3 Ruskin Way | £ 215,000 | 0.07 KM |
| 15 Ruskin Way | £ 176,500 | 0.07 KM |
| 16 Ruskin Way | £ 184,000 | 0.07 KM |
| 27 Ruskin Way | £ 270,000 | 0.07 KM |