Headington Quarry, Oxford, OX3
By Chancellors
£ 375,000
Reviews
4 out of 5 stars
Chancellors says ..
Situated in the sought after Quarry Conservation Area, an opportunity to acquire a much improved two bedroom home with substantial sitting room, private garden, driveway parking space and no onward chain
Property Oracle says ..
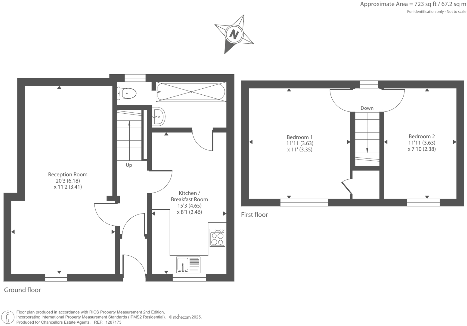
The property is a 2 bedroom end of terrace house located in Headington Quarry, Oxford. It has been recently renovated to a high standard, as evidenced by the photographs. The property benefits from a modern kitchen and bathroom, and neutral décor throughout. The property also includes a garden. The location is excellent, with a number of highly-rated schools within a short distance, including Headington Quarry Foundation Stage School (Outstanding Ofsted rating) and Slade Nursery School (Outstanding Ofsted rating). Oxford city centre is also within reasonable commuting distance, with several train stations accessible by car or bus. Based on the images, the property appears to be in excellent condition and has been recently renovated. There is no evidence of any significant repairs or renovations required. The property has a small garden, which is a desirable feature for many buyers. The size is not specified, but the images suggest a manageable and private outdoor space. Considering the average price per sqft in the area is £418, and the property is 723 sqft, a rough estimate of the value would be £302,000. However, the list price is £375,000. While above the estimated value based on average sqft, the recent renovation, excellent condition, and desirable location justify a higher price compared to other properties in the area. The list price is therefore considered reasonable, given the property’s features and location.
Therefore, we give this property 8 / 10. *Disclaimer: This is our option and does constitute a recommendation or financial advice. Do your own research. *
- Price
- 7
- Condition
- 10
- Location
- 9
- Land
- 6
- Bedrooms
- 2
- Bathrooms
- 1
- Sqft (est)
- 723.00
The heatmap indicates the level of crime in the area. The color of the heatmap indicates the crime severity and recency.
Metrics Year-on-Year
- Average area value
- 403,000.00 £Decreased by 22.05 %
- Est sale value
- 363,669.00 £Increased by 20.91 %
- Average area rental value
- 1,553.00 £/moDecreased by 1.71 %
- Est letting value
- 723.00 £/moUnchanged by 0.00 %
- Est rental Yield
- 4.62 %Increased by 25.89 %
- Crime Rate
- 7.00 %Unchanged by 0.00 %
Agent Activity
Chancellors created the listing.
Nearby Schools
| Name | Type | Ofsted | Distance |
|---|---|---|---|
| Headington Quarry Foundation Stage School | Local Authority Nursery School | Outstanding | 0.24 KM |
| Bayards Hill School | Academy Sponsor Led | Requires improvement | 0.46 KM |
| Endeavour Academy, Oxford | Academy Special Sponsor Led | Good | 0.82 KM |
| Barton Children And Family Centre | Children's Centre | 0.82 KM | |
| Slade Nursery School | Local Authority Nursery School | Outstanding | 1.06 KM |
Images
Nearby Streets
| Name | Average Price | Average Sqft | Distance |
|---|---|---|---|
| Beaumont Road | £ 0 | 0 | 0.00 KM |
| Spring Lane | £ 340,000 | 0 | 0.00 KM |
| Gladstone Road | £ 0 | 0 | 0.00 KM |
| Wick Close | £ 0 | 0 | 0.00 KM |
| Overdale Close | £ 0 | 0 | 0.00 KM |
Nearby Transport
| Name | NLC | TLC | Distance |
|---|---|---|---|
| Oxford | 3115 | OXF | 8.19 KM |
| Islip | 3110 | ISP | 8.62 KM |
| Radley | 3118 | RAD | 9.59 KM |
| Oxford Parkway | 3121 | OXP | 9.91 KM |
Nearby Listings
| Address | Price | Type | Score | Distance |
|---|---|---|---|---|
| Headington Quarry, Oxford, OX3 | £ 375,000 | BUY | 8 / 10 | 0.00 KM |
| Headington Quarry, Oxford, OX3 | £ 360,000 | BUY | 7 / 10 | 0.00 KM |
| Headington Quarry, Oxford, OX3 | £ 450,000 | BUY | 7 / 10 | 0.01 KM |
| Headington Quarry, Oxford, OX3 | £ 425,000 | BUY | 7 / 10 | 0.01 KM |
| Cooper Place, Headington, OX3 | £ 425,000 | BUY | 6 / 10 | 0.08 KM |
Nearby Properties
| Address | Price | Distance |
|---|---|---|
| 34 Quarry High Street | £ 365,000 | 0.05 KM |
| 65 Quarry High Street | £ 415,000 | 0.07 KM |
| 63 Quarry High Street | £ 298,000 | 0.07 KM |
| 28 Quarry High Street | £ 285,000 | 0.07 KM |
| 26 Quarry High Street | £ 275,000 | 0.07 KM |