GA
Yeardsley Lane, Furness Vale, High Peak
By Gascoigne Halman
£ 199,000
Reviews
3 out of 5 stars
Gascoigne Halman says ..
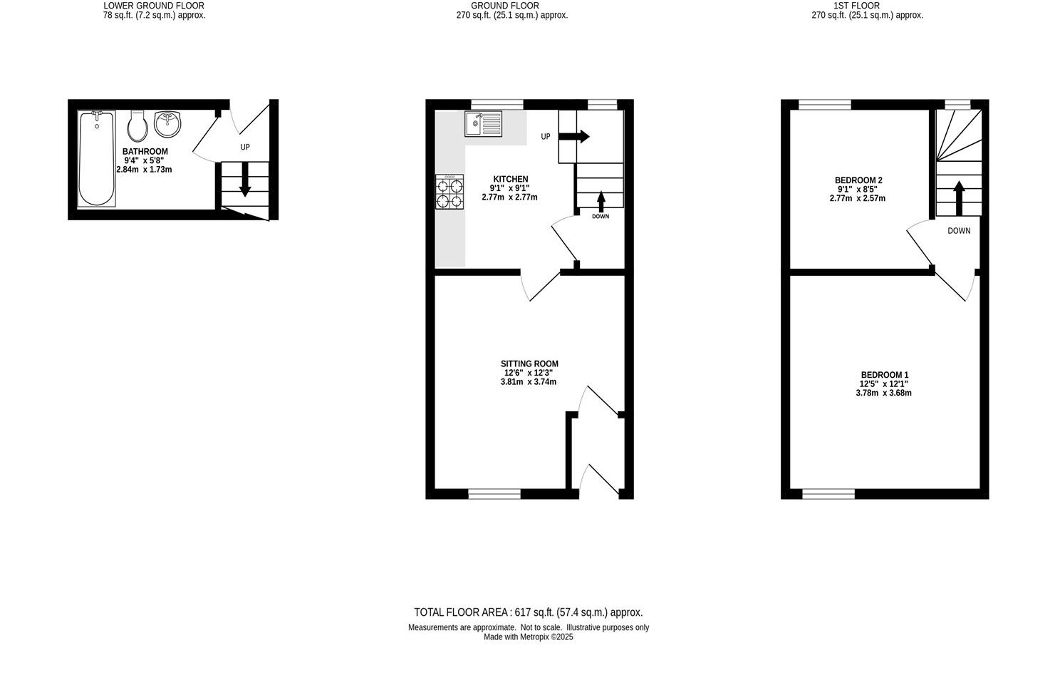
A STONE MID TERRACE PROPERTY located within a popular location close to amenities and COMMUTER LINKS. The property has good living and kitchen spaces plus TWO BEDROOMS. There is a GARDEN area to the rear.
Property Oracle says ..
Therefore, we give this property 6 / 10. *Disclaimer: This is our option and does constitute a recommendation or financial advice. Do your own research. *
- Price
- 7
- Condition
- 4
- Location
- 7
- Land
- 6
- Bedrooms
- 2
- Bathrooms
- 1
- Sqft (est)
- 617.00
The heatmap indicates the level of crime in the area. The color of the heatmap indicates the crime severity and recency.
Metrics Year-on-Year
- Average area value
- 334,167.00 £Increased by 24.23 %
- Est sale value
- 158,569.00 £Decreased by 19.44 %
- Average area rental value
- 1,252.00 £/moIncreased by 4.33 %
- Est letting value
- 0.00 £/moDecreased by 100.00 %
- Est rental Yield
- 4.50 %Decreased by 15.89 %
- Crime Rate
- 55.00 %Unchanged by 0.00 %
from 269,000.00 £
from 196,823.00 £
from 1,200.00 £/mo
from 617.00 £/mo
from 5.35 %
from 55.00 %
Agent Activity
Gascoigne Halman created the listing.
Nearby Schools
| Name | Type | Ofsted | Distance |
|---|---|---|---|
| Furness Vale Primary And Nursery School | Community School | Good | 0.11 KM |
| New Mills School | Community School | Good | 2.28 KM |
| St George'S Cofe Primary School | Academy Sponsor Led | 2.28 KM | |
| Whaley Bridge Primary School | Community School | Requires improvement | 2.37 KM |
| Newtown Primary School (High Peak Federation) | Community School | Good | 2.46 KM |
Images
Nearby Streets
| Name | Average Price | Average Sqft | Distance |
|---|---|---|---|
| Goyt Road | £ 310,000 | 0 | 0.00 KM |
| Williamson Crescent | £ 0 | 0 | 0.00 KM |
Nearby Transport
| Name | NLC | TLC | Distance |
|---|---|---|---|
| Furness Vale | 2952 | FNV | 0.15 KM |
| Whaley Bridge | 2772 | WBR | 1.99 KM |
| New Mills Newtown | 2769 | NMN | 2.51 KM |
| New Mills Central | 2974 | NMC | 2.64 KM |
| Chinley | 2823 | CLY | 5.08 KM |
Nearby Listings
| Address | Price | Type | Score | Distance |
|---|---|---|---|---|
| Yeardsley Lane, Furness Vale, High Peak | £ 199,000 | BUY | 6 / 10 | 0.00 KM |
| Yeardsley Lane, Furness Vale, High Peak | £ 370,000 | BUY | 6 / 10 | 0.00 KM |
| Buxton Road, Furness Vale, High Peak | £ 180,000 | BUY | Unknown | 0.09 KM |
| Yeardsley Lane, Furness Vale, High Peak | £ 370,000 | BUY | 6 / 10 | 0.11 KM |
| Buxton Road, Furness Vale, SK23 | £ 250,000 | BUY | 6 / 10 | 0.11 KM |
Nearby Properties
| Address | Price | Distance |
|---|---|---|
| 35 Buxton Road | £ 69,950 | 0.12 KM |
| 17 Buxton Road | £ 95,000 | 0.12 KM |
| 19 Buxton Road | £ 154,000 | 0.12 KM |
| 9 Buxton Road | £ 134,000 | 0.12 KM |
| 13 Buxton Road | £ 115,000 | 0.12 KM |