Lower Weare, Axbridge, Somerset, BS26
CA

Lower Weare, Axbridge, Somerset, BS26

By Carter Jonas Rural

£ 1,375,000

Reviews

3 out of 5 stars

Carter Jonas Rural says ..

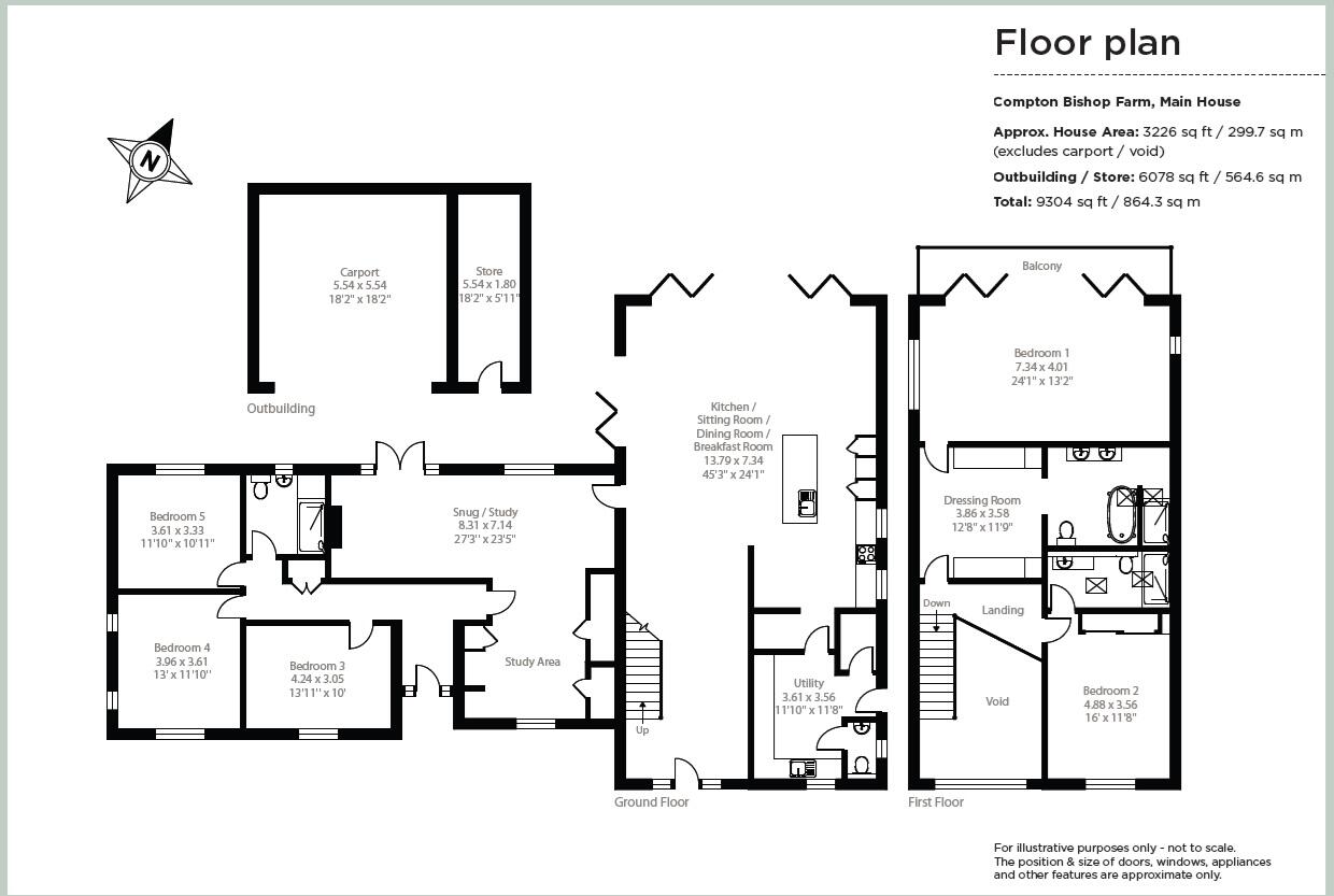
Lot 1, Compton Bishop Farm comprises a very well presented equestrian and livestock holding situated at the foot of the Mendip Hills, serviced by an immaculate five-bedroom farmhouse. Lot 1 extends to 8.71 acres. For sale by private treaty. Further land available.

Property Oracle says ..

Therefore, we give this property 7 / 10. *Disclaimer: This is our option and does constitute a recommendation or financial advice. Do your own research. *

Price
5
Condition
9
Location
7
Land
9
Bedrooms
5
Bathrooms
0
Sqft (est)
559.60

The heatmap indicates the level of crime in the area. The color of the heatmap indicates the crime severity and recency.

Metrics Year-on-Year

Average area value
583,750.00 £
Increased by 2.54 %
from 569,314.00 £
Est sale value
460,550.80 £
Increased by 133.14 %
from 197,538.80 £
Average area rental value
1,200.00 £/mo
Decreased by 5.06 %
from 1,264.00 £/mo
Est letting value
559.60 £/mo
from 0.00 £/mo
Est rental Yield
2.47 %
Decreased by 7.14 %
from 2.66 %
Crime Rate
0.00 %
from 0.00 %

Agent Activity

  • Carter Jonas Rural created the listing.

Nearby Schools

NameTypeOfstedDistance
Weare Academy First SchoolAcademy Converter1.37 KM
Axbridge Church Of England First School AcademyAcademy Converter3.31 KM
Winscombe Primary SchoolAcademy Converter4.17 KM
Sidcot SchoolOther Independent School4.23 KM
Banwell, Winscombe And SandfordChildren's Centre5.29 KM

Images

Picture No. 01 Picture No. 02 Picture No. 07 Picture No. 20 Picture No. 06 Picture No. 19 Picture No. 25 Picture No. 05 Picture No. 21 Picture No. 09 Site Plan Picture No. 08 Picture No. 24 Picture No. 04 Picture No. 18 Picture No. 17 Picture No. 22 Picture No. 15 Picture No. 16 Picture No. 10 Back Cover

Nearby Streets

NameAverage PriceAverage SqftDistance
Combe Lane £ 000.00 KM

Nearby Listings

AddressPriceTypeScoreDistance
Lower Weare, Axbridge, Somerset, BS26 £ 1,375,000BUY7 / 100.00 KM
Lower Weare, Axbridge, Somerset, BS26 £ 1,850,000BUYUnknown0.00 KM
Old Coach Road, Lower Weare, Axbridge, Somerset, BS26 £ 40,000BUY8 / 100.14 KM
Old Coach Road, Cross, Axbridge, BS26 £ 590,000BUY6 / 100.33 KM
Lot 2: Land At Compton Bishop Farm, Axbridge, Somerset, BS26 £ 100,000BUYUnknown0.44 KM

Nearby Properties

AddressPriceDistance
Riverton House £ 615,0000.15 KM
The Maltings £ 550,0000.31 KM
The Barrels £ 350,0000.31 KM
Marcombe £ 415,0000.31 KM
Ardara £ 449,9500.31 KM