HA
Sea View Avenue, Westward Ho!
By Harding and Co
£ 499,999
Reviews
3 out of 5 stars
Harding and Co says ..
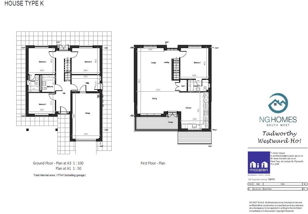
The Harbour is a truly unique 4 bed (3 bath/shower rooms, 2 en-suite) detached home carefully designed to optimise modern family living. This property has a reverse living layout with 3 generous sized bedrooms on the ground floor and on the 1st floor you will be impressed by the open plan living,...
Property Oracle says ..
Therefore, we give this property 7 / 10. *Disclaimer: This is our option and does constitute a recommendation or financial advice. Do your own research. *
- Price
- 7
- Condition
- 9
- Location
- 7
- Land
- 6
- Bedrooms
- 4
- Bathrooms
- 2
- Sqft (est)
- 1,905.21
The heatmap indicates the level of crime in the area. The color of the heatmap indicates the crime severity and recency.
Metrics Year-on-Year
- Average area value
- 421,797.00 £Increased by 27.32 %
- Est sale value
- 884,017.44 £Increased by 66.31 %
- Average area rental value
- 913.00 £/moIncreased by 18.73 %
- Est letting value
- 1,905.21 £/mo
- Est rental Yield
- 2.60 %Decreased by 6.81 %
- Crime Rate
- 11.00 %Unchanged by 0.00 %
from 331,301.00 £
from 531,553.59 £
from 769.00 £/mo
from 0.00 £/mo
from 2.79 %
from 11.00 %
Agent Activity
Harding and Co created the listing.
Nearby Schools
| Name | Type | Ofsted | Distance |
|---|---|---|---|
| St George'S Church Of England (Va) Infant And Nursery School | Voluntary Aided School | Good | 1.18 KM |
| St Margaret'S Church Of England (Aided) Junior School | Voluntary Aided School | Requires improvement | 1.18 KM |
| Kingsley School | Other Independent School | 2.29 KM | |
| St Mary'S Church Of England Primary School | Voluntary Controlled School | Good | 2.70 KM |
| Bideford College | Academy Sponsor Led | Requires improvement | 2.74 KM |
Images
Nearby Streets
| Name | Average Price | Average Sqft | Distance |
|---|---|---|---|
| Torville Park | £ 0 | 0 | 0.00 KM |
| Century Drive | £ 0 | 0 | 0.00 KM |
| Boulevard Way | £ 0 | 0 | 0.00 KM |
| Atlanta Way | £ 0 | 0 | 0.00 KM |
| Golf Links Road | £ 0 | 0 | 0.00 KM |
Nearby Listings
| Address | Price | Type | Score | Distance |
|---|---|---|---|---|
| Sea View Avenue, Westward Ho! | £ 499,999 | BUY | 8 / 10 | 0.00 KM |
| Sea View Avenue, Westward Ho! | £ 365,000 | BUY | 7 / 10 | 0.00 KM |
| Sea View Avenue, Westward Ho! | £ 465,000 | BUY | 7 / 10 | 0.00 KM |
| Sea View Avenue, Westward Ho! | £ 365,000 | BUY | 6 / 10 | 0.00 KM |
| Sea View Avenue, Westward Ho! | £ 365,000 | BUY | 6 / 10 | 0.00 KM |
Nearby Properties
| Address | Price | Distance |
|---|---|---|
| 105 Atlantic Way | £ 230,000 | 0.00 KM |
| 74 Atlantic Way | £ 249,950 | 0.00 KM |
| 115 Atlantic Way | £ 165,327 | 0.00 KM |
| 73 Atlantic Way | £ 245,500 | 0.00 KM |
| 56 Atlantic Way | £ 342,500 | 0.00 KM |