Grenfell Avenue, Sunnyhill, Derby, DE23
By Northwood
£ 220,000
Reviews
3 out of 5 stars
Northwood says ..
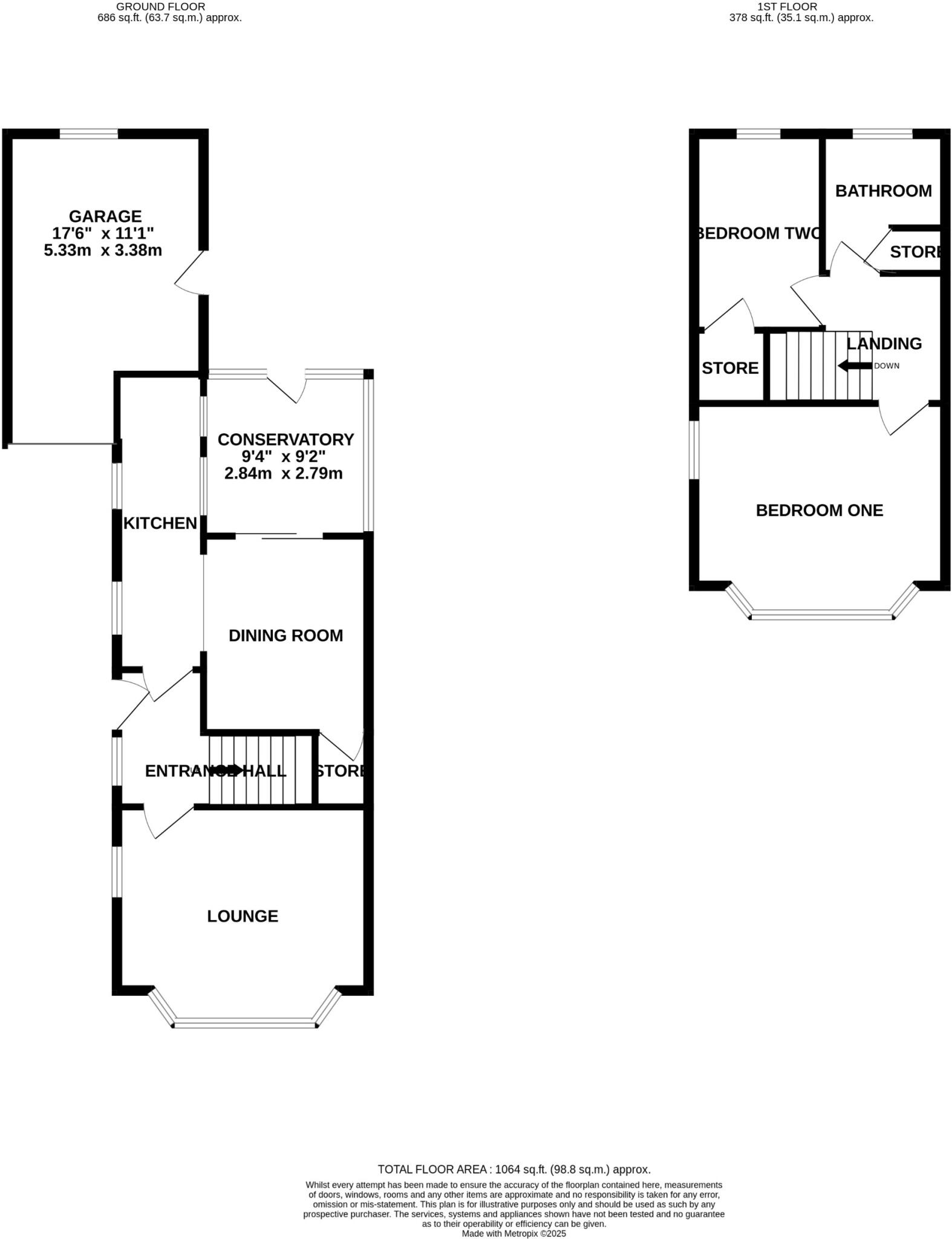
Well-presented 2-bed semi-detached home in Sunnyhill, Derby. Features a lounge, kitchen/diner, conservatory, and garden with pergola. Two double bedrooms, family bathroom, and boarded loft. Gated driveway, garage with electric roller shutter. Viewing recommended!
Property Oracle says ..
This property is a 2-bedroom, 1-bathroom semi-detached house located on Grenfell Avenue in Sunnyhill, Derby. The list price is £220,000, and the property has 1,053.87 sqft of living space and a 1,064 sqft plot. The property appears to be in good condition, with a recently updated kitchen and bathroom. There is also a garden and off-street parking. The location is convenient, with nearby schools and transportation options. However, the average house price in the area is significantly higher than the list price of this property. This may indicate that the property is underpriced, especially given its condition and amenities.
Therefore, we give this property 7 / 10. *Disclaimer: This is our option and does constitute a recommendation or financial advice. Do your own research. *
- Price
- 6
- Condition
- 8
- Location
- 7
- Land
- 7
- Bedrooms
- 2
- Bathrooms
- 1
- Sqft (est)
- 1,053.87
- Lot (est)
- 1,064.00
The heatmap indicates the level of crime in the area. The color of the heatmap indicates the crime severity and recency.
Metrics Year-on-Year
- Average area value
- 244,615.00 £Decreased by 9.46 %
- Est sale value
- 301,406.82 £Increased by 10.85 %
- Average area rental value
- 854.00 £/moDecreased by 1.50 %
- Est letting value
- 1,053.87 £/mo
- Est rental Yield
- 4.19 %Increased by 8.83 %
- Crime Rate
- 6.00 %Unchanged by 0.00 %
Agent Activity
Northwood marked this listing as sold.
Northwood created the listing.
Nearby Schools
| Name | Type | Ofsted | Distance |
|---|---|---|---|
| Akaal Primary School | Free Schools | Requires improvement | 0.57 KM |
| Austin Sunnyhill Children'S Centre | Children's Centre | 0.91 KM | |
| Cottons Farm Primary Academy | Academy Sponsor Led | 1.06 KM | |
| Normanton House School | Other Independent School | Requires improvement | 1.12 KM |
| Village Primary Academy | Academy Converter | 1.12 KM |
Images
Nearby Streets
| Name | Average Price | Average Sqft | Distance |
|---|---|---|---|
| Coleridge Street | £ 0 | 0 | 0.00 KM |
| Grange Avenue | £ 0 | 0 | 0.00 KM |
| Saxon Close | £ 0 | 0 | 0.00 KM |
| Wellesley Avenue | £ 0 | 0 | 0.00 KM |
| St. Stephen's Close | £ 220,000 | 0 | 0.00 KM |
Nearby Transport
| Name | NLC | TLC | Distance |
|---|---|---|---|
| Peartree | 1687 | PEA | 2.00 KM |
| Derby | 1823 | DBY | 4.13 KM |
| Spondon | 1699 | SPO | 9.06 KM |
| Willington | 1905 | WIL | 9.09 KM |
Nearby Listings
| Address | Price | Type | Score | Distance |
|---|---|---|---|---|
| Grenfell Avenue, Sunnyhill, Derby, DE23 | £ 220,000 | BUY | 7 / 10 | 0.00 KM |
| Grenfell Avenue, Sunnyhill | £ 200,000 | BUY | Unknown | 0.02 KM |
| Grenfell Avenue, Sunnyhill | £ 265,000 | BUY | Unknown | 0.03 KM |
| Underhill Close | £ 230,000 | BUY | 6 / 10 | 0.08 KM |
| Underhill Close, Derby, Derbyshire | £ 160,000 | BUY | 6 / 10 | 0.10 KM |
Nearby Properties
| Address | Price | Distance |
|---|---|---|
| 25 Grenfell Avenue | £ 102,500 | 0.00 KM |
| 17 Grenfell Avenue | £ 185,000 | 0.00 KM |
| 29 Grenfell Avenue | £ 110,000 | 0.00 KM |
| 5 Grenfell Avenue | £ 95,000 | 0.00 KM |
| 21 Grenfell Avenue | £ 119,950 | 0.00 KM |