Gascoigne Halman says ..
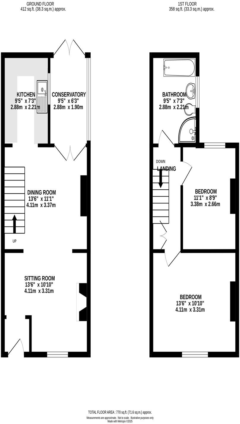
A TRADITIONAL MID TERRACE PROPERTY which has great spacious accommodation offering TWO OPEN PLAN RECEPTION ROOMS, kitchen, small conservatory and TWO BEDROOMS. The property has GARDEN areas to both the front and rear. The location is popular and close to the town's excellent amenities and go...
Property Oracle says ..
This property is a 2-bedroom, 1-bathroom terraced house located on Buxton Road in Whaley Bridge, High Peak, Derbyshire. The list price is £240,000, and the property has a size of 770 sqft. The average house price in the area is £295,393, with an average price per sqft of £301. The property appears to be in good condition based on the provided photos. The interior looks well-maintained and recently updated, with a modern kitchen and bathroom. There is evidence of a small garden area, although its size is not specified. The location is advantageous due to its proximity to Whaley Bridge train station and several primary schools, which is convenient for families. However, the property’s size (770 sqft) is smaller than the average for the area (981 sqft), and the list price (£240,000) is below the average (£295,393). Considering the apparent good condition and convenient location, the price may represent good value, especially when compared to similar properties listed in the area. The lack of plot size information makes a complete assessment of land value impossible.
Therefore, we give this property 6 / 10. *Disclaimer: This is our option and does constitute a recommendation or financial advice. Do your own research. *
- Price
- 7
- Condition
- 8
- Location
- 8
- Land
- 3
- Bedrooms
- 2
- Bathrooms
- 1
- Sqft (est)
- 770.00
The heatmap indicates the level of crime in the area. The color of the heatmap indicates the crime severity and recency.
Metrics Year-on-Year
- Average area value
- 334,167.00 £Increased by 24.23 %
- Est sale value
- 197,890.00 £Decreased by 19.44 %
- Average area rental value
- 1,252.00 £/moIncreased by 4.33 %
- Est letting value
- 0.00 £/moDecreased by 100.00 %
- Est rental Yield
- 4.50 %Decreased by 15.89 %
- Crime Rate
- 30.00 %Unchanged by 0.00 %
Agent Activity
Gascoigne Halman created the listing.
Nearby Schools
| Name | Type | Ofsted | Distance |
|---|---|---|---|
| Whaley Bridge Primary School | Community School | Requires improvement | 0.13 KM |
| Taxal And Fernilee Cofe Primary School | Voluntary Controlled School | Good | 0.57 KM |
| Buxworth Primary School | Community School | Good | 2.34 KM |
| Furness Vale Primary And Nursery School | Community School | Good | 2.56 KM |
| Kettleshulme St James Cofe (Va) Primary School | Voluntary Aided School | Good | 4.06 KM |
Images
Nearby Streets
| Name | Average Price | Average Sqft | Distance |
|---|---|---|---|
| Williamson Crescent | £ 0 | 0 | 0.00 KM |
| Dale View | £ 602,500 | 0 | 0.00 KM |
| The Paddock | £ 235,000 | 0 | 0.00 KM |
| Manor Road | £ 0 | 0 | 0.00 KM |
| Vaughan Road | £ 0 | 0 | 0.00 KM |
Nearby Transport
| Name | NLC | TLC | Distance |
|---|---|---|---|
| Whaley Bridge | 2772 | WBR | 0.52 KM |
| Furness Vale | 2952 | FNV | 2.62 KM |
| New Mills Newtown | 2769 | NMN | 4.62 KM |
| Chinley | 2823 | CLY | 4.78 KM |
| New Mills Central | 2974 | NMC | 4.95 KM |
Nearby Listings
| Address | Price | Type | Score | Distance |
|---|---|---|---|---|
| Buxton Road, High Peak | £ 240,000 | BUY | 6 / 10 | 0.00 KM |
| Buxton Road, Whaley Bridge, High Peak | £ 320,000 | BUY | Unknown | 0.01 KM |
| 3 Trinity Mews, 48 Buxton Road, Whaley Bridge, High Peak | £ 295,000 | BUY | 6 / 10 | 0.06 KM |
| Buxton Road, Whaley Bridge, High Peak | £ 325,000 | BUY | 7 / 10 | 0.07 KM |
| 89 Buxton Road, Whaley Bridge, High Peak | £ 450,000 | BUY | 6 / 10 | 0.09 KM |
Nearby Properties
| Address | Price | Distance |
|---|---|---|
| 40 Buxton Road | £ 175,000 | 0.10 KM |
| Rivendell House | £ 217,000 | 0.10 KM |
| 46 Buxton Road | £ 385,000 | 0.10 KM |
| 50 Buxton Road | £ 110,000 | 0.10 KM |
| 70 Buxton Road | £ 117,000 | 0.10 KM |