Prospect Place, Hipley Street, Woking, Surrey, GU22
By Seymours Estate Agents
£ 200,000
Reviews
3 out of 5 stars
Seymours Estate Agents says ..
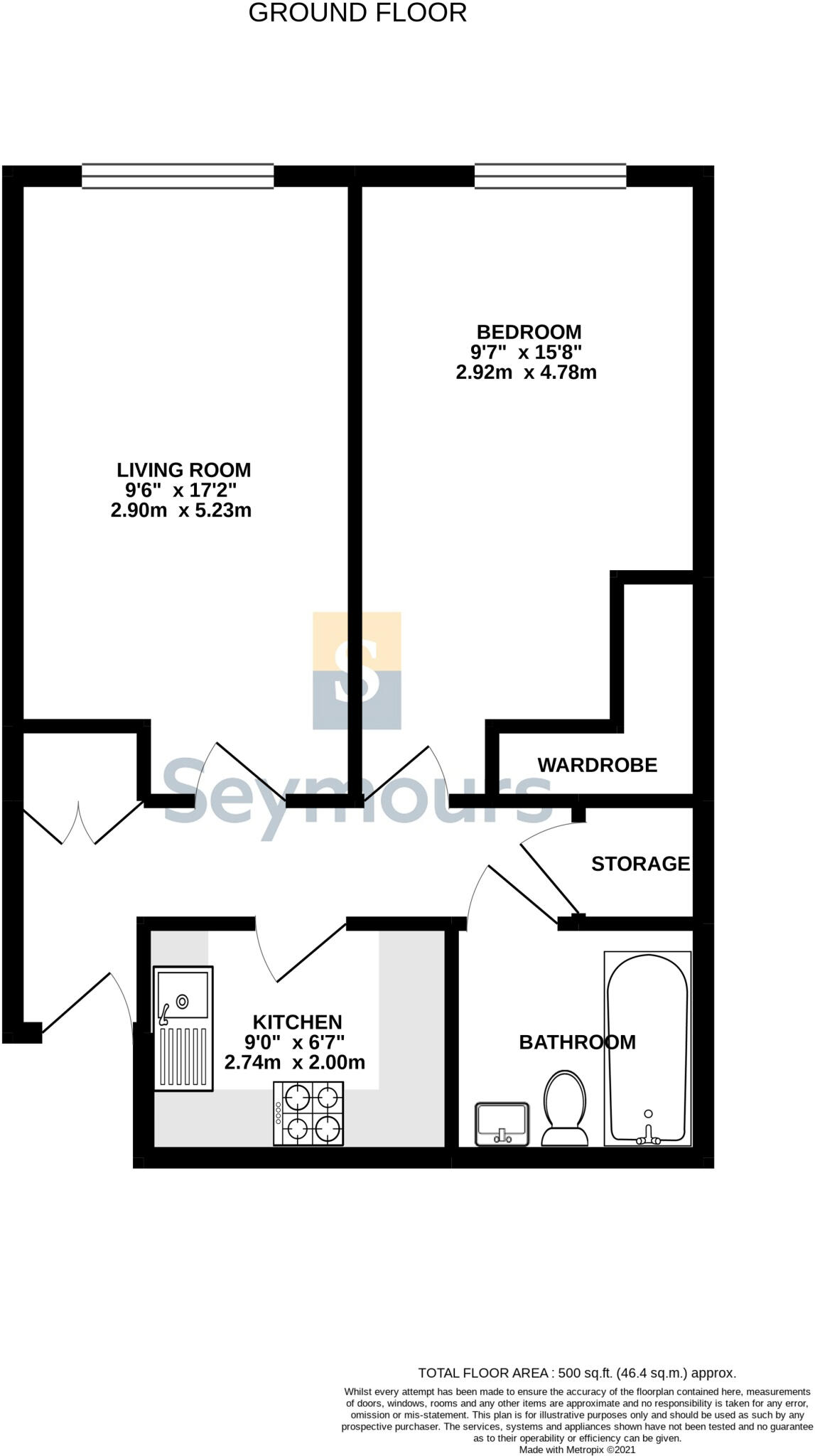
Recently redecorated and immaculately presented. A stunning 2nd floor one bedroom apartment, set within an exclusive gated development with easy access to Woking Town Centre, A3, Local Shops and amenities. This larger than average apartment offers one large double bedroom, well-appoin...
Property Oracle says ..
Therefore, we give this property 6 / 10. *Disclaimer: This is our option and does constitute a recommendation or financial advice. Do your own research. *
- Price
- 9
- Condition
- 8
- Location
- 7
- Land
- 3
- Bedrooms
- 1
- Bathrooms
- 1
- Sqft (est)
- 500.00
The heatmap indicates the level of crime in the area. The color of the heatmap indicates the crime severity and recency.
Metrics Year-on-Year
- Average area value
- 531,250.00 £Increased by 10.45 %
- Est sale value
- 360,500.00 £Increased by 52.43 %
- Average area rental value
- 2,200.00 £/moIncreased by 7.53 %
- Est letting value
- 1,000.00 £/moUnchanged by 0.00 %
- Est rental Yield
- 4.97 %Decreased by 2.55 %
- Crime Rate
- 9.00 %Unchanged by 0.00 %
from 480,971.00 £
from 236,500.00 £
from 2,046.00 £/mo
from 1,000.00 £/mo
from 5.10 %
from 9.00 %
Agent Activity
Seymours Estate Agents created the listing.
Nearby Schools
| Name | Type | Ofsted | Distance |
|---|---|---|---|
| Woking College | Academy 16-19 Converter | Good | 0.60 KM |
| Sythwood At Old Woking Sure Start Children'S Centre | Children's Centre Linked Site | 0.75 KM | |
| Kingfield Primary School | Academy Converter | 0.75 KM | |
| St John The Baptist Catholic Comprehensive School, Woking | Academy Converter | 0.76 KM | |
| Hoe Bridge School | Other Independent School | 0.93 KM |
Images
Nearby Streets
| Name | Average Price | Average Sqft | Distance |
|---|---|---|---|
| Manor Way | £ 498,750 | 0 | 0.00 KM |
| Robinson Close | £ 0 | 0 | 0.00 KM |
| Church Street | £ 0 | 0 | 0.00 KM |
| Queen Elizabeth Way | £ 1,200,000 | 0 | 0.00 KM |
| Round Hill | £ 0 | 0 | 0.00 KM |
Nearby Transport
| Name | NLC | TLC | Distance |
|---|---|---|---|
| Woking | 5685 | WOK | 2.18 KM |
| Worplesdon | 5686 | WPL | 4.57 KM |
| West Byfleet | 5684 | WBY | 5.81 KM |
| Clandon | 5555 | CLA | 6.35 KM |
| London Road (Guildford) | 5632 | LRD | 7.39 KM |
Nearby Listings
| Address | Price | Type | Score | Distance |
|---|---|---|---|---|
| Prospect Place, Hipley Street, Woking, Surrey, GU22 | £ 200,000 | BUY | 6 / 10 | 0.00 KM |
| Hipley Street, Woking, Surrey, GU22 | £ 400,000 | BUY | 6 / 10 | 0.03 KM |
| Hipley Street, Old Woking, Woking, Surrey, GU22 | £ 525,000 | BUY | 7 / 10 | 0.03 KM |
| Hipley Street, Old Woking, Woking, Surrey, GU22 | £ 290,000 | BUY | 5 / 10 | 0.05 KM |
| Prospect Place, Hipley Street, Woking, Surrey, GU22 | £ 260,000 | BUY | Unknown | 0.07 KM |
Nearby Properties
| Address | Price | Distance |
|---|---|---|
| 5 Hipley Street | £ 470,000 | 0.02 KM |
| 23 Hipley Street | £ 325,000 | 0.02 KM |
| 18 Hipley Street | £ 345,000 | 0.02 KM |
| 17 Hipley Street | £ 347,500 | 0.02 KM |
| 25 Hipley Street | £ 354,000 | 0.02 KM |