Equity Living says ..
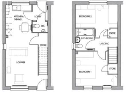
An opportunity to purchase this two double bedroom mid mews property, located on recently constructed Brooks development, near Clitheroe. Sold as a 60% share, the accommodation comprises of an entrance hall, open plan lounge, dining/kitchen area, utility room and downstairs cloakroom/WC. To the f...
Property Oracle says ..
This is a well-presented mews property in Clitheroe, Lancashire. The house offers two bedrooms and one bathroom, making it suitable for a small family or couple. The property benefits from a modern interior, a garden, and proximity to local amenities, including schools and transportation. The listing price of £132,000 appears to be very competitive compared to the average property prices in the area. Overall, this property presents a good opportunity for potential buyers.
Therefore, we give this property 7 / 10. *Disclaimer: This is our option and does constitute a recommendation or financial advice. Do your own research. *
- Price
- 9
- Condition
- 8
- Location
- 7
- Land
- 7
- Bedrooms
- 2
- Bathrooms
- 1
- Sqft (est)
- 750.00
The heatmap indicates the level of crime in the area. The color of the heatmap indicates the crime severity and recency.
Metrics Year-on-Year
- Average area value
- 524,714.00 £Increased by 15.54 %
- Est sale value
- 462,750.00 £Increased by 48.67 %
- Average area rental value
- 1,989.00 £/moIncreased by 4.74 %
- Est letting value
- 1,500.00 £/moIncreased by 100.00 %
- Est rental Yield
- 4.55 %Decreased by 9.36 %
- Crime Rate
- 0.00 %
Agent Activity
Equity Living created the listing.
Nearby Schools
| Name | Type | Ofsted | Distance |
|---|---|---|---|
| Barrow Urc Primary School | Voluntary Controlled School | Outstanding | 1.18 KM |
| Oakhill School | Other Independent School | 1.36 KM | |
| Spring Wood Children'S Centre | Children's Centre Linked Site | 1.61 KM | |
| Whalley Church Of England Primary School | Voluntary Aided School | Good | 1.75 KM |
| St Augustine'S Roman Catholic High School, Billington | Voluntary Aided School | Outstanding | 3.16 KM |
Images
Nearby Streets
| Name | Average Price | Average Sqft | Distance |
|---|---|---|---|
| Hawthorn Road | £ 0 | 0 | 0.00 KM |
| Hawthorn Road | £ 312,749 | 0 | 0.00 KM |
| Stika Street | £ 273,995 | 0 | 0.00 KM |
| Cypress Square | £ 0 | 0 | 0.00 KM |
| Barrow Bridge | £ 240,000 | 0 | 0.00 KM |
Nearby Transport
| Name | NLC | TLC | Distance |
|---|---|---|---|
| Whalley (Lancashire) | 2736 | WHE | 1.51 KM |
| Clitheroe | 2574 | CLH | 4.33 KM |
| Langho | 2735 | LHO | 5.77 KM |
| Rishton | 2580 | RIS | 8.23 KM |
| Church And Oswaldtwistle | 2556 | CTW | 9.76 KM |
Nearby Listings
| Address | Price | Type | Score | Distance |
|---|---|---|---|---|
| Hawthorn Road, Clitheroe | £ 132,000 | BUY | 7 / 10 | 0.00 KM |
| Hawthorn Road, Barrow, BB7 | £ 450,000 | BUY | 7 / 10 | 0.04 KM |
| Hawthorn Road, Barrow, Clitheroe, Lancashire, BB7 | £ 370,000 | BUY | 8 / 10 | 0.04 KM |
| Hawthorn Road, Barrow, Clitheroe, Lancashire, BB7 | £ 310,000 | BUY | 7 / 10 | 0.10 KM |
| Stika Street, Barrow, BB7 | £ 370,000 | BUY | 7 / 10 | 0.12 KM |
Nearby Properties
| Address | Price | Distance |
|---|---|---|
| Thornycroft | £ 185,000 | 0.49 KM |
| Jemstone | £ 230,000 | 0.49 KM |
| 3 Bramley View | £ 77,000 | 0.49 KM |
| 5 Bramley View | £ 150,000 | 0.49 KM |
| Lamb Roe Cottage | £ 320,000 | 0.49 KM |