Abode says ..
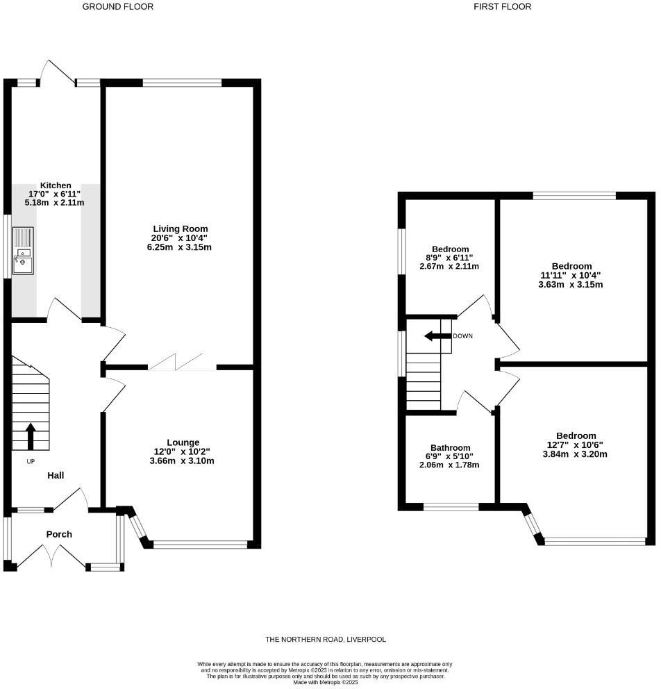
Welcome to this delightful three-bedroom semi-detached house situated on The Northern Road in Crosby, Liverpool. This charming property features two spacious reception rooms, providing an excellent setting for entertaining guests or enjoying quiet family time. The three inviting bedrooms offer am...
Property Oracle says ..
This property is a 3-bedroom, 1-bathroom house located on The Northern Road in Liverpool. The house is in need of some modernisation, however, it is located in a desirable area close to good schools and transport links. The asking price of £249,950 seems reasonable considering the average price per sqft in the area and the size of the property. The property has a small front garden.
Therefore, we give this property 6 / 10. *Disclaimer: This is our option and does constitute a recommendation or financial advice. Do your own research. *
- Price
- 7
- Condition
- 6
- Location
- 8
- Land
- 3
- Bedrooms
- 3
- Bathrooms
- 1
- Sqft (est)
- 2,004.24
The heatmap indicates the level of crime in the area. The color of the heatmap indicates the crime severity and recency.
Metrics Year-on-Year
- Average area value
- 273,072.00 £Decreased by 1.50 %
- Est sale value
- 677,433.12 £Increased by 29.01 %
- Average area rental value
- 1,340.00 £/moIncreased by 9.39 %
- Est letting value
- 2,004.24 £/moUnchanged by 0.00 %
- Est rental Yield
- 5.89 %Increased by 11.13 %
- Crime Rate
- 2.00 %Unchanged by 0.00 %
Agent Activity
Abode created the listing.
Nearby Schools
| Name | Type | Ofsted | Distance |
|---|---|---|---|
| Great Crosby Catholic Primary School | Voluntary Aided School | Good | 0.47 KM |
| Forefield Junior School | Community School | Good | 0.51 KM |
| Forefield Community Infant And Nursery School | Community School | Outstanding | 0.62 KM |
| Sacred Heart Catholic College | Voluntary Aided School | Requires improvement | 0.97 KM |
| Crosby High School | Community Special School | Good | 1.06 KM |
Images
Nearby Streets
| Name | Average Price | Average Sqft | Distance |
|---|---|---|---|
| Wembley Road | £ 0 | 0 | 0.00 KM |
| Highfield Grove | £ 0 | 0 | 0.00 KM |
| Wylva Avenue | £ 270,000 | 0 | 0.00 KM |
| Rydal Avenue | £ 0 | 0 | 0.00 KM |
| Sycamore Avenue | £ 0 | 0 | 0.00 KM |
Nearby Transport
| Name | NLC | TLC | Distance |
|---|---|---|---|
| Waterloo (Merseyside) | 2133 | WLO | 1.89 KM |
| Seaforth And Litherland | 2250 | SFL | 2.69 KM |
| Blundellsands And Crosby | 2123 | BLN | 2.73 KM |
| Hall Road | 2229 | HLR | 3.94 KM |
| Bootle New Strand | 2195 | BNW | 4.51 KM |
Nearby Listings
| Address | Price | Type | Score | Distance |
|---|---|---|---|---|
| The Northern Road, Liverpool | £ 249,950 | BUY | 6 / 10 | 0.00 KM |
| Marchmont Drive, Crosby, Liverpool, L23 | £ 230,000 | BUY | 7 / 10 | 0.11 KM |
| Marchmont Drive, Crosby, Liverpool | £ 315,000 | BUY | 7 / 10 | 0.11 KM |
| Marchmont Drive, Crosby, Liverpool | £ 240,000 | BUY | 7 / 10 | 0.15 KM |
| Marchmont Drive, Crosby, Liverpool | £ 350,000 | BUY | Unknown | 0.15 KM |
Nearby Properties
| Address | Price | Distance |
|---|---|---|
| 128 The Northern Road | £ 170,000 | 0.04 KM |
| 124 The Northern Road | £ 180,000 | 0.04 KM |
| 130 The Northern Road | £ 190,000 | 0.04 KM |
| 136 The Northern Road | £ 142,000 | 0.04 KM |
| 118 The Northern Road | £ 92,500 | 0.04 KM |