Empire Estates says ..
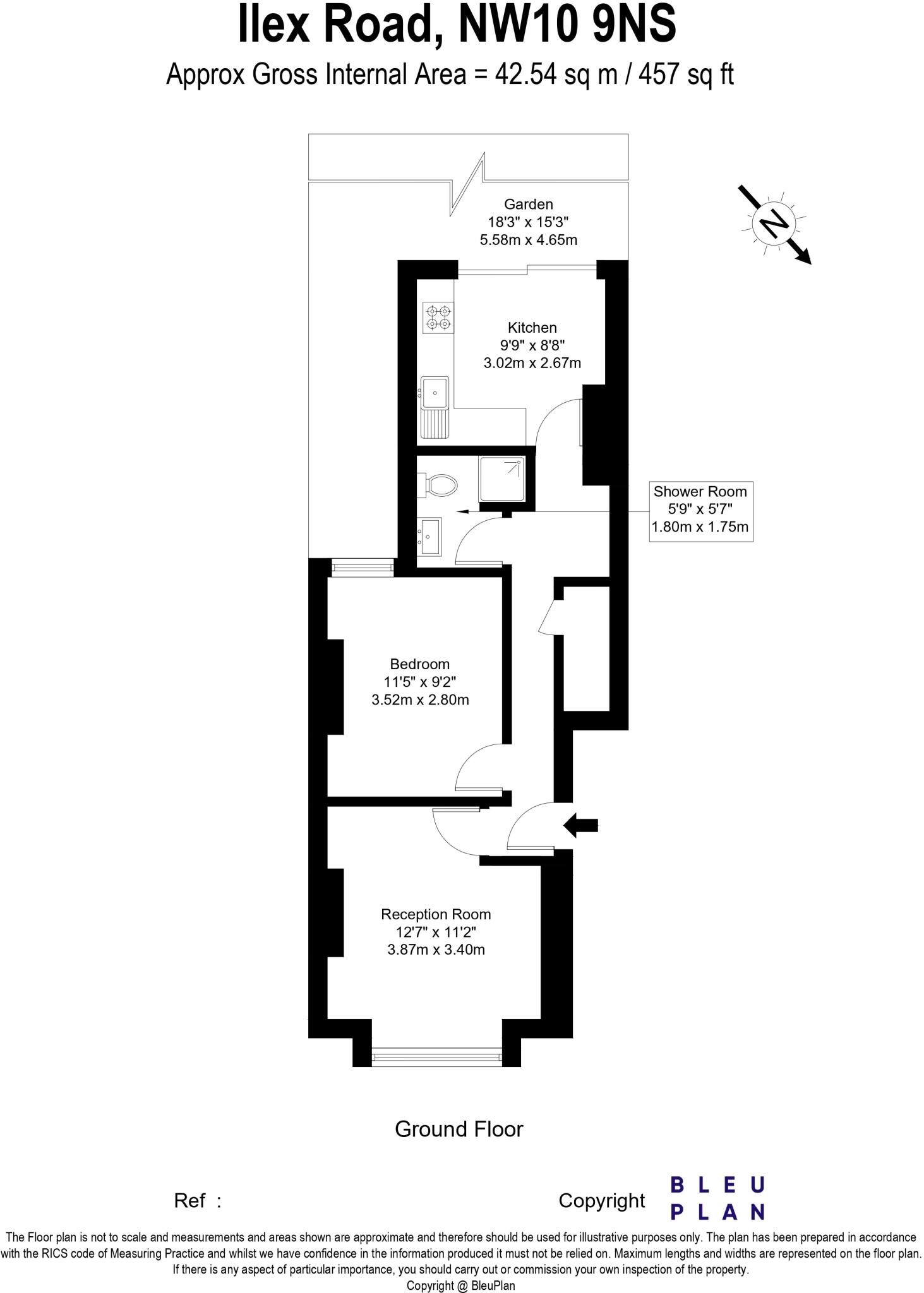
Empire Estates are pleased to present this well maintained one bedroom ground floor maisonette. The property offers a spacious reception room at the front, a bright double bedroom, a modern three-piece bathroom, and a stylish kitchen located at the rear. It also benefits from a generous private g...
Property Oracle says ..
Therefore, we give this property 6 / 10. *Disclaimer: This is our option and does constitute a recommendation or financial advice. Do your own research. *
- Price
- 8
- Condition
- 8
- Location
- 7
- Land
- 3
- Bedrooms
- 2
- Bathrooms
- 1
- Sqft (est)
- 647.71
The heatmap indicates the level of crime in the area. The color of the heatmap indicates the crime severity and recency.
Metrics Year-on-Year
- Average area value
- 601,250.00 £Decreased by 12.11 %
- Est sale value
- 270,742.78 £Decreased by 27.18 %
- Average area rental value
- 2,507.00 £/moIncreased by 10.78 %
- Est letting value
- 647.71 £/moUnchanged by 0.00 %
- Est rental Yield
- 5.00 %Increased by 25.94 %
- Crime Rate
- 9.00 %Unchanged by 0.00 %
from 684,061.00 £
from 371,785.54 £
from 2,263.00 £/mo
from 647.71 £/mo
from 3.97 %
from 9.00 %
Agent Activity
Empire Estates created the listing.
Nearby Schools
| Name | Type | Ofsted | Distance |
|---|---|---|---|
| Leopold Primary School | Community School | Good | 0.44 KM |
| Curzon Crescent Children'S Centre | Children's Centre | 0.51 KM | |
| Curzon Nursery School & Family Wellbeing Centre | Local Authority Nursery School | Good | 0.55 KM |
| St Mary'S Cofe Primary School | Voluntary Aided School | Good | 0.59 KM |
| St Joseph'S Roman Catholic Primary School | Voluntary Aided School | Outstanding | 0.65 KM |
Images
Nearby Streets
| Name | Average Price | Average Sqft | Distance |
|---|---|---|---|
| Roundwood Road | £ 700,000 | 0 | 0.00 KM |
| Essex Road | £ 0 | 0 | 0.00 KM |
| Bourke Close | £ 350,000 | 0 | 0.00 KM |
| Fawcett Road | £ 900,000 | 0 | 0.00 KM |
| Suffolk Road | £ 560,000 | 0 | 0.00 KM |
Nearby Transport
| Name | NLC | TLC | Distance |
|---|---|---|---|
| Willesden Junction | 1457 | WIJ | 1.78 KM |
| Harlesden | 1521 | HDN | 1.80 KM |
| Kensal Green | 1447 | KNL | 3.12 KM |
| Stonebridge Park | 1454 | SBP | 3.24 KM |
| Kensal Rise | 1448 | KNR | 3.34 KM |
Nearby Listings
| Address | Price | Type | Score | Distance |
|---|---|---|---|---|
| Ilex Road, Willesden | £ 324,950 | BUY | 6 / 10 | 0.00 KM |
| Ilex Road, London, NW10 | £ 575,000 | BUY | 7 / 10 | 0.06 KM |
| High Road, Kensal Rise | £ 299,950 | BUY | 6 / 10 | 0.07 KM |
| High Road, London | £ 315,000 | BUY | 6 / 10 | 0.08 KM |
| High Road, London, NW10 | £ 299,950 | BUY | 5 / 10 | 0.09 KM |
Nearby Properties
| Address | Price | Distance |
|---|---|---|
| 2b Ilex Road | £ 237,500 | 0.00 KM |
| 14 Ilex Road | £ 249,999 | 0.00 KM |
| 12 Ilex Road | £ 249,000 | 0.00 KM |
| 2a Ilex Road | £ 85,000 | 0.00 KM |
| 13 Ilex Road | £ 275,000 | 0.04 KM |