Yopa says ..
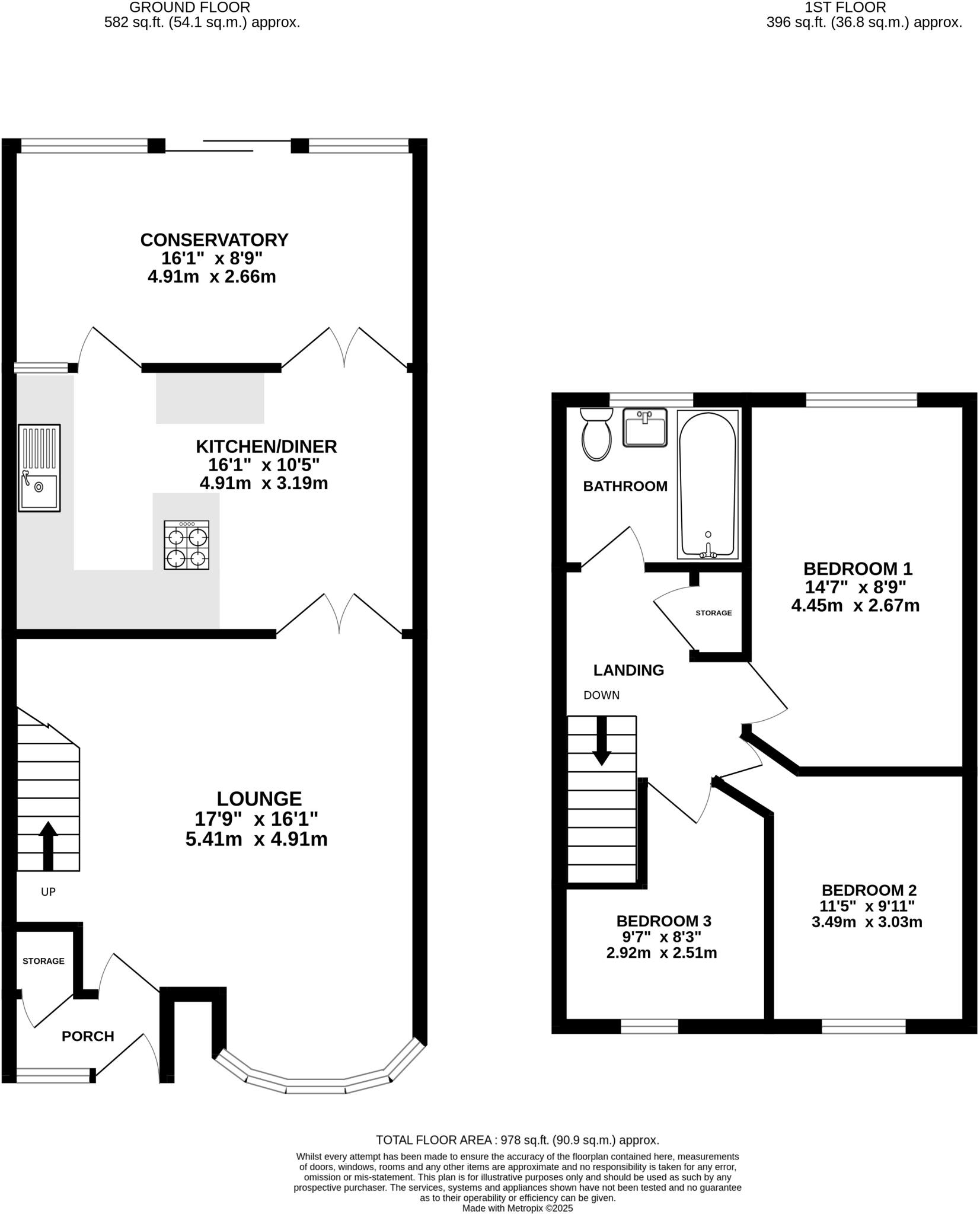
An extended 3 bedroom mid terraced family home offered for sale with no onward chain complications. 18ft lounge, 16ft kitchen dining room and 16ft conservatory. Fitted 3 piece bathroom suite and residents parking bays within the close and road. An ideal first time or investment purchase.
Property Oracle says ..
This is a three-bedroom terraced house in Farnham Upper Hale. The property benefits from front and back gardens and a shed for storage. While the kitchen has been updated, other areas of the house may benefit from some modernisation. The property is located within a reasonable distance of local schools and Farnham train station.
Therefore, we give this property 6 / 10. *Disclaimer: This is our option and does constitute a recommendation or financial advice. Do your own research. *
- Price
- 7
- Condition
- 6
- Location
- 7
- Land
- 7
- Bedrooms
- 3
- Bathrooms
- 1
- Sqft (est)
- 870.69
The heatmap indicates the level of crime in the area. The color of the heatmap indicates the crime severity and recency.
Metrics Year-on-Year
- Average area value
- 272,143.00 £Decreased by 0.84 %
- Est sale value
- 213,319.05 £Increased by 2.08 %
- Average area rental value
- 950.00 £/moDecreased by 12.68 %
- Est letting value
- 0.00 £/mo
- Est rental Yield
- 4.19 %Decreased by 11.97 %
- Crime Rate
- 53.00 %Unchanged by 0.00 %
Agent Activity
Yopa created the listing.
Nearby Schools
| Name | Type | Ofsted | Distance |
|---|---|---|---|
| Hale Nursery & Primary Academy | Academy Converter | 0.21 KM | |
| Hale Sure Start Children'S Centre | Children's Centre | 0.30 KM | |
| University For The Creative Arts | Higher Education Institutions | Good | 2.23 KM |
| Farnham Heath End | Academy Converter | Good | 2.51 KM |
| Potters Gate Cofe Primary School | Academy Converter | 2.56 KM |
Images
Nearby Streets
| Name | Average Price | Average Sqft | Distance |
|---|---|---|---|
| Fernhill Close | £ 950,000 | 0 | 0.00 KM |
| The Green | £ 675,000 | 0 | 0.00 KM |
| Vicarage Lane | £ 650,000 | 0 | 0.00 KM |
| Armsworth Way | £ 900,000 | 0 | 0.00 KM |
| Verdun Street | £ 0 | 0 | 0.00 KM |
Nearby Transport
| Name | NLC | TLC | Distance |
|---|---|---|---|
| Farnham | 5545 | FNH | 3.03 KM |
| Aldershot | 5623 | AHT | 4.98 KM |
| Fleet | 5522 | FLE | 6.70 KM |
| Farnborough (Main) | 5521 | FNB | 8.53 KM |
| North Camp | 5636 | NCM | 9.13 KM |
Nearby Listings
| Address | Price | Type | Score | Distance |
|---|---|---|---|---|
| Eton Place, Farnham, GU9 | £ 315,000 | BUY | 6 / 10 | 0.00 KM |
| Sandy Hill Road, Farnham | £ 385,000 | BUY | 6 / 10 | 0.03 KM |
| Blackheath Road, Farnham, Surrey, GU9 | £ 330,000 | BUY | 6 / 10 | 0.06 KM |
| Sandy Hill Road, Farnham, Surrey, GU9 | £ 300,000 | BUY | 5 / 10 | 0.06 KM |
| Brougham Place, Farnham, GU9 | £ 330,000 | BUY | 6 / 10 | 0.14 KM |
Nearby Properties
| Address | Price | Distance |
|---|---|---|
| 180 Eton Place | £ 308,500 | 0.01 KM |
| 185 Eton Place | £ 230,000 | 0.01 KM |
| 184 Eton Place | £ 150,000 | 0.01 KM |
| 177 Eton Place | £ 170,000 | 0.01 KM |
| 178 Eton Place | £ 165,000 | 0.01 KM |