Lumley Road, Newton Hall, Durham, DH1
By Newfield Estates
£ 299,950
Reviews
3 out of 5 stars
Newfield Estates says ..
*** IDEAL FAMILY HOME, SOUGHT AFTER LOCATION, SOUTH WEST FACING REAR GARDEN, LARGE BLOCK PAVED DRIVEWAY WITH OFF STREET PARKING FOR NUMEROUS VEHICLES, STYLISH BATHROOM, VIEWINGS HIGHLY RECOMMENDED ***
Property Oracle says ..
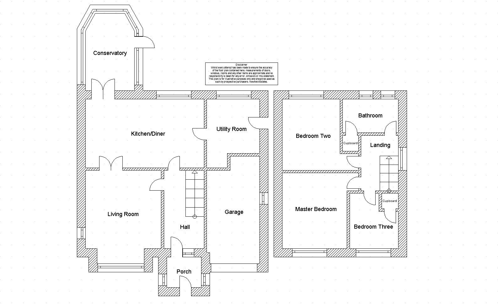
The property is a 3-bedroom house with 1 bathroom, situated in Newton Hall, Durham. The location benefits from being relatively close to several schools, including Blue Coat Cofe Junior School and Durham Newton Hall Infants’ School, both rated ‘Good’ by Ofsted. The proximity to Durham train station (2.49 KM) provides convenient access to public transportation. The presence of a south-west facing rear garden is a positive feature, increasing the property’s desirability. Images show the property to be in good condition, with recent renovations or upgrades apparent in the kitchen and bathroom. The driveway offers ample off-street parking. The property also benefits from a conservatory. While the provided data lacks specific pricing information for comparable properties in terms of square footage, the list price of £299,950 appears to be within the range of similar properties in the area, considering the condition, location, and amenities. However, without precise average price-per-square-foot data for the immediate vicinity, a more definitive assessment of the price’s reasonableness is difficult. More data on comparable properties’ square footage would provide a more accurate price comparison.
Therefore, we give this property 7 / 10. *Disclaimer: This is our option and does constitute a recommendation or financial advice. Do your own research. *
- Price
- 7
- Condition
- 9
- Location
- 8
- Land
- 7
- Bedrooms
- 3
- Bathrooms
- 1
- Sqft (est)
- 1,460.00
The heatmap indicates the level of crime in the area. The color of the heatmap indicates the crime severity and recency.
Metrics Year-on-Year
- Average area value
- 225,990.00 £Increased by 7.98 %
- Est sale value
- 281,780.00 £Decreased by 7.21 %
- Average area rental value
- 1,096.00 £/moIncreased by 16.60 %
- Est letting value
- 0.00 £/mo
- Est rental Yield
- 5.82 %Increased by 7.98 %
- Crime Rate
- 13.00 %Unchanged by 0.00 %
Agent Activity
Newfield Estates created the listing.
Nearby Schools
| Name | Type | Ofsted | Distance |
|---|---|---|---|
| Blue Coat Cofe (Aided) Junior School | Voluntary Aided School | Good | 0.37 KM |
| Durham Newton Hall Infants' School | Community School | Good | 0.40 KM |
| St Godric'S Catholic Primary School, Durham | Academy Converter | 0.82 KM | |
| Finchale Primary School | Community School | Good | 1.18 KM |
| Framwellgate School Durham | Academy Converter | Good | 1.37 KM |
Images
Nearby Streets
| Name | Average Price | Average Sqft | Distance |
|---|---|---|---|
| Norham Road | £ 220,000 | 0 | 0.00 KM |
| Litchfield Road | £ 0 | 0 | 0.00 KM |
| Carlisle Road | £ 220,000 | 0 | 0.00 KM |
| Priory Road | £ 0 | 0 | 0.00 KM |
| Low Moor Cottages | £ 170,000 | 0 | 0.00 KM |
Nearby Transport
| Name | NLC | TLC | Distance |
|---|---|---|---|
| Durham | 7745 | DHM | 2.49 KM |
| Chester-Le-Street | 7736 | CLS | 6.09 KM |
Nearby Listings
| Address | Price | Type | Score | Distance |
|---|---|---|---|---|
| Lumley Road, Newton Hall, Durham, DH1 | £ 299,950 | BUY | 7 / 10 | 0.00 KM |
| Norham Road, Newton Hall, Durham, Durham, DH1 5NU | £ 220,000 | BUY | 6 / 10 | 0.11 KM |
| Hylton Road, Newton Hall, Durham, DH1 | £ 265,000 | BUY | 7 / 10 | 0.20 KM |
| Hylton Road, Newton Hall, Durham, DH1 | £ 400,000 | BUY | 6 / 10 | 0.21 KM |
| Richmond Court, Newton Hall, Durham, DH1 | £ 73,000 | BUY | 6 / 10 | 0.23 KM |
Nearby Properties
| Address | Price | Distance |
|---|---|---|
| 29 Lumley Road | £ 240,000 | 0.05 KM |
| 28 Lumley Road | £ 209,950 | 0.05 KM |
| 33 Lumley Road | £ 139,950 | 0.05 KM |
| 25 Lumley Road | £ 294,000 | 0.05 KM |
| 52 Lumley Road | £ 210,000 | 0.05 KM |