Langford Russell says ..
Located on the highly sought-after Overhill Way, this five-bedroom semi-detached home offers generous living space and fantastic potential for modernisation—an excellent opportunity for families looking to create their dream home in a desirable BR3 location. Set over three floors...
Property Oracle says ..
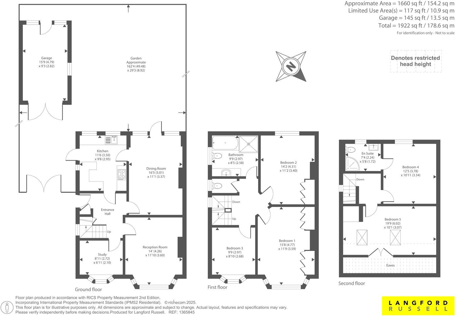
This is a five-bedroom semi-detached house located on Overhill Way in Beckenham. The property offers ample living space at 1,922 square feet and includes a large garden. While some areas of the house have been modernised, other rooms, such as the kitchen, would benefit from refurbishment. The property is situated in a convenient location, close to schools and transportation links, making it suitable for families and commuters. The asking price of £935,000 appears reasonable given the size and location of the property.
Therefore, we give this property 7 / 10. *Disclaimer: This is our option and does constitute a recommendation or financial advice. Do your own research. *
- Price
- 7
- Condition
- 6
- Location
- 7
- Land
- 8
- Bedrooms
- 5
- Bathrooms
- 2
- Sqft (est)
- 1,922.00
The heatmap indicates the level of crime in the area. The color of the heatmap indicates the crime severity and recency.
Metrics Year-on-Year
- Average area value
- 497,714.00 £Decreased by 40.57 %
- Est sale value
- 937,936.00 £Decreased by 13.01 %
- Average area rental value
- 2,862.00 £/moIncreased by 47.15 %
- Est letting value
- 3,844.00 £/moIncreased by 100.00 %
- Est rental Yield
- 6.90 %Increased by 147.31 %
- Crime Rate
- 4.00 %Unchanged by 0.00 %
Agent Activity
Langford Russell created the listing.
Nearby Schools
| Name | Type | Ofsted | Distance |
|---|---|---|---|
| Langley Park Primary School | Free Schools | Good | 0.90 KM |
| Langley Park School For Girls | Academy Converter | Good | 0.91 KM |
| Langley Park School For Boys | Academy Converter | Good | 1.24 KM |
| Unicorn Primary School | Academy Converter | Good | 1.24 KM |
| St David'S Prep | Other Independent School | 1.38 KM |
Images
Nearby Streets
| Name | Average Price | Average Sqft | Distance |
|---|---|---|---|
| Hawksbrook Lane | £ 0 | 0 | 0.00 KM |
| Bramble Close | £ 0 | 0 | 0.00 KM |
| West Way | £ 1,250,000 | 0 | 0.00 KM |
| Saint Martin's Lane | £ 842,500 | 0 | 0.00 KM |
| Quinton Close | £ 0 | 0 | 0.00 KM |
Nearby Transport
| Name | NLC | TLC | Distance |
|---|---|---|---|
| West Wickham | 5054 | WWI | 1.18 KM |
| Eden Park | 5056 | EDN | 1.81 KM |
| Shortlands | 5084 | SRT | 2.10 KM |
| Ravensbourne | 5083 | RVB | 2.60 KM |
| Hayes | 5050 | HYS | 2.80 KM |
Nearby Listings
| Address | Price | Type | Score | Distance |
|---|---|---|---|---|
| Overhill Way, Beckenham | £ 935,000 | BUY | 7 / 10 | 0.00 KM |
| Overhill Way, Park Langley, Beckenham, BR3 | £ 900,000 | BUY | Unknown | 0.03 KM |
| Overhill Way, Park Langley, Beckenham, BR3 | £ 1,025,000 | BUY | Unknown | 0.04 KM |
| Overhill Way, Beckenham, BR3 | £ 900,000 | BUY | 6 / 10 | 0.06 KM |
| Overhill Way, Beckenham, BR3 | £ 800,000 | BUY | 7 / 10 | 0.08 KM |
Nearby Properties
| Address | Price | Distance |
|---|---|---|
| 45 Overhill Way | £ 775,000 | 0.01 KM |
| 3 Overhill Way | £ 698,000 | 0.01 KM |
| 29 Overhill Way | £ 595,000 | 0.01 KM |
| 17 Overhill Way | £ 520,000 | 0.01 KM |
| 5 Overhill Way | £ 545,000 | 0.01 KM |