Country Holmes says ..
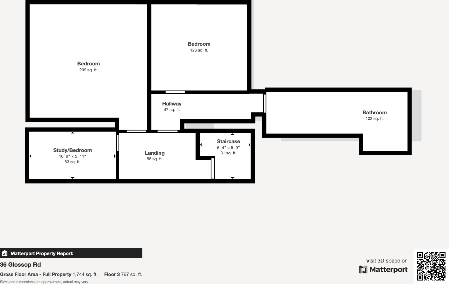
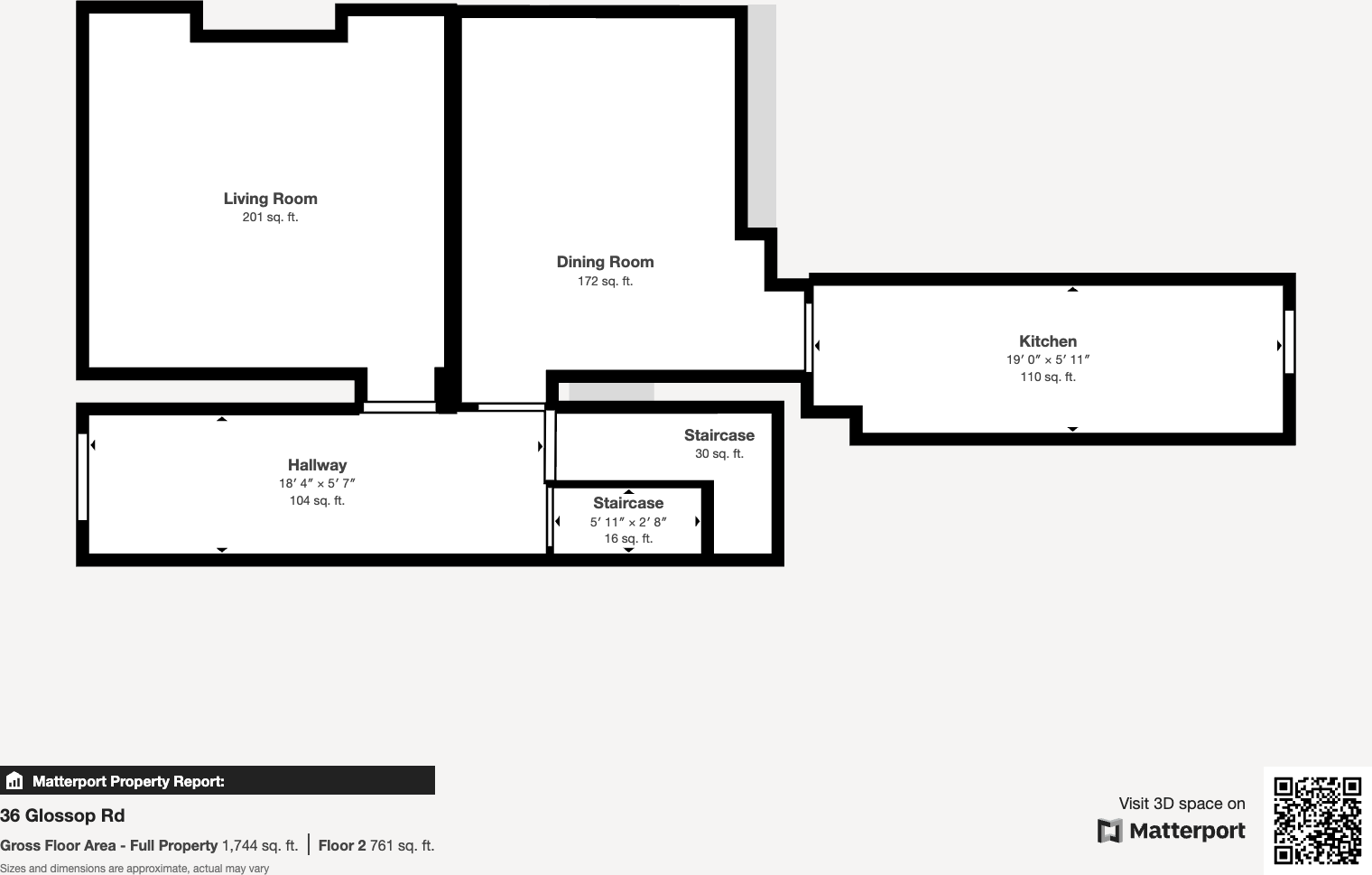
This charming stone-built semi-detached home in the heart of Charlesworth offers character-filled accommodation with stunning countryside views. Featuring original period details, a cosy lounge with log burner, separate dining room, and a modern 18 ft galley kitchen, the property also boasts t...
Property Oracle says ..
Therefore, we give this property 7 / 10. *Disclaimer: This is our option and does constitute a recommendation or financial advice. Do your own research. *
- Price
- 7
- Condition
- 8
- Location
- 8
- Land
- 6
- Bedrooms
- 3
- Bathrooms
- 1
- Sqft (est)
- 633.00
The heatmap indicates the level of crime in the area. The color of the heatmap indicates the crime severity and recency.
Metrics Year-on-Year
- Average area value
- 384,737.00 £Decreased by 1.20 %
- Est sale value
- 257,631.00 £Increased by 15.95 %
- Average area rental value
- 1,963.00 £/moIncreased by 39.81 %
- Est letting value
- 1,266.00 £/moIncreased by 100.00 %
- Est rental Yield
- 6.12 %Increased by 41.34 %
- Crime Rate
- 28.00 %Unchanged by 0.00 %
from 389,410.00 £
from 222,183.00 £
from 1,404.00 £/mo
from 633.00 £/mo
from 4.33 %
from 28.00 %
Agent Activity
Country Holmes created the listing.
Nearby Schools
| Name | Type | Ofsted | Distance |
|---|---|---|---|
| Charlesworth Voluntary Controlled Primary School | Voluntary Controlled School | Good | 0.26 KM |
| St Margaret'S Catholic Voluntary Academy | Academy Converter | 1.08 KM | |
| Gamesley Children'S Centre | Children's Centre | 1.37 KM | |
| Gamesley Primary School | Academy Sponsor Led | 1.73 KM | |
| Gamesley Early Excellence Centre | Local Authority Nursery School | Outstanding | 1.82 KM |
Images
Nearby Streets
| Name | Average Price | Average Sqft | Distance |
|---|---|---|---|
| New Mills Road | £ 522,475 | 0 | 0.00 KM |
| Wardlow Mews | £ 0 | 0 | 0.00 KM |
| Castleton Crescent | £ 0 | 0 | 0.00 KM |
| Langsett Lane | £ 0 | 0 | 0.00 KM |
| Grassmoor Crescent | £ 0 | 0 | 0.00 KM |
Nearby Transport
| Name | NLC | TLC | Distance |
|---|---|---|---|
| Broadbottom | 2892 | BDB | 2.82 KM |
| Dinting | 2893 | DTG | 3.01 KM |
| Hadfield | 2896 | HDF | 4.26 KM |
| Glossop | 2895 | GLO | 4.93 KM |
| Hattersley | 2604 | HTY | 5.48 KM |
Nearby Listings
| Address | Price | Type | Score | Distance |
|---|---|---|---|---|
| Glossop Road, Charlesworth | £ 365,000 | BUY | 7 / 10 | 0.00 KM |
| Church Fold, Charlesworth, Glossop | £ 215,000 | BUY | Unknown | 0.08 KM |
| Marple Road, Charlesworth, Glossop, Derbyshire, SK13 | £ 299,950 | BUY | 7 / 10 | 0.12 KM |
| Lee Vale Drive, Charlesworth, Derbyshire, SK13 5HD | £ 375,000 | BUY | 7 / 10 | 0.17 KM |
| Haydn Fold, Charlesworth | £ 325,000 | BUY | Unknown | 0.17 KM |
Nearby Properties
| Address | Price | Distance |
|---|---|---|
| 26 Glossop Road | £ 228,500 | 0.01 KM |
| 28a Glossop Road | £ 285,000 | 0.01 KM |
| 10 Glossop Road | £ 120,000 | 0.01 KM |
| 17 Glossop Road | £ 225,000 | 0.01 KM |
| 15 Glossop Road | £ 140,000 | 0.01 KM |