Frognal Lane, London, NW3
By Nova Haus London
£ 1,150,000
Reviews
3 out of 5 stars
Nova Haus London says ..
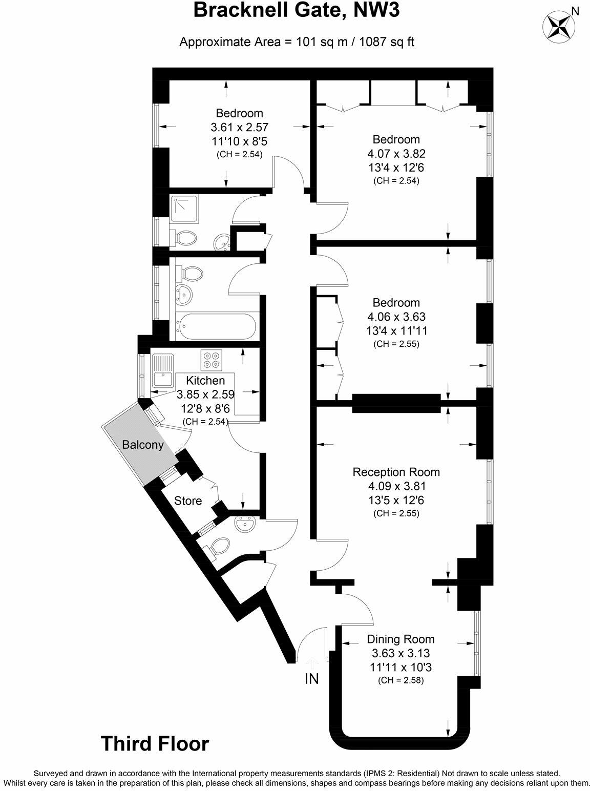
Three Bedrooms | Two Bathrooms | Top Floor | Lift | Communal Gardens | Chain Free | Day Porter | Chain Free | Off Street Parking | 1087 sq.ft. | Balcony | Leashold | Purpose Built Block | Situated on the top floor of this popular purpose built portered block is this spacious three bed...
Property Oracle says ..
Frognal Lane is located in a highly desirable area of North West London. The property benefits from being close to excellent schools such as St Margaret’s School and University College School, both within a short distance. Transport links are also convenient, with Finchley Road and Frognal Overground station just 0.60 KM away, providing easy access to central London. The area is known for its attractive residential streets and proximity to Hampstead Heath, offering a green and leafy environment.
Based on the provided images, the property appears to be in reasonable condition. While the interior is presented as vacant and unfurnished, the walls and floors look clean and well-maintained. The kitchen and bathrooms appear functional, although a modernisation might enhance their appeal. There is no obvious evidence of significant damage or disrepair. However, a full survey would be necessary to provide a definitive assessment of the property’s condition.
The property includes a balcony, which offers some external space. While not a large garden, it still provides a welcome addition for outdoor enjoyment.
The list price of £1,150,000 seems relatively reasonable compared to other similar properties in the area. While precise square footage is not provided, the comparable listings suggest that the price per square foot is in line with local market values, considering the property’s location, condition, and features. However, a more accurate assessment would require the square footage of the property to be included. The lack of precise plot size and square footage information makes it difficult to definitively assess the value for money. Further investigation into property prices per square foot in the immediate vicinity would be beneficial.
Therefore, we give this property 6 / 10. *Disclaimer: This is our option and does constitute a recommendation or financial advice. Do your own research. *
- Price
- 7
- Condition
- 7
- Location
- 9
- Land
- 3
- Bedrooms
- 3
- Bathrooms
- 2
The heatmap indicates the level of crime in the area. The color of the heatmap indicates the crime severity and recency.
Metrics Year-on-Year
- Average area value
- 2,006,818.00 £Increased by 21.53 %
- Average area rental value
- 3,542.00 £/moIncreased by 13.31 %
- Est rental Yield
- 2.12 %Decreased by 6.61 %
- Crime Rate
- 2.00 %Unchanged by 0.00 %
Agent Activity
Nova Haus London created the listing.
Nearby Schools
| Name | Type | Ofsted | Distance |
|---|---|---|---|
| St Margaret'S School | Other Independent School | 0.57 KM | |
| University College School | Other Independent School | 0.70 KM | |
| Emmanuel Church Of England Primary School | Voluntary Aided School | Good | 0.70 KM |
| Hampstead Parochial Church Of England Primary School | Voluntary Aided School | Good | 0.92 KM |
| St Luke'S Church Of England School | Free Schools | Good | 0.92 KM |
Images
Nearby Streets
| Name | Average Price | Average Sqft | Distance |
|---|---|---|---|
| West End Lane | £ 0 | 0 | 0.00 KM |
| Bracknell Way | £ 0 | 0 | 0.00 KM |
| Dennington Park Mansions | £ 450,000 | 0 | 0.00 KM |
| Croft Way | £ 1,245,000 | 0 | 0.00 KM |
| The Grand Parade | £ 0 | 0 | 0.00 KM |
Nearby Transport
| Name | NLC | TLC | Distance |
|---|---|---|---|
| Finchley Road And Frognal | 1445 | FNY | 0.60 KM |
| West Hampstead Thameslink | 1525 | WHP | 0.75 KM |
| West Hampstead | 1421 | WHD | 0.80 KM |
| South Hampstead | 1451 | SOH | 1.65 KM |
| Kilburn High Road | 1415 | KBN | 1.89 KM |
Nearby Listings
| Address | Price | Type | Score | Distance |
|---|---|---|---|---|
| Frognal Lane, London, NW3 | £ 1,150,000 | BUY | 6 / 10 | 0.00 KM |
| Frognal Lane, Hampstead, NW3 | £ 1,199,950 | BUY | 8 / 10 | 0.02 KM |
| Frognal Lane, Hampstead, NW3 | £ 1,100,000 | BUY | 7 / 10 | 0.04 KM |
| Frognal Lane, London, NW3 | £ 1,100,000 | BUY | 6 / 10 | 0.04 KM |
| Frognal Lane, London, NW3 | £ 1,100,000 | BUY | 6 / 10 | 0.04 KM |
Nearby Properties
| Address | Price | Distance |
|---|---|---|
| 10e Bracknell Gardens | £ 930,500 | 0.06 KM |
| 18 Bracknell Gardens | £ 4,100,000 | 0.06 KM |
| 10d Bracknell Gardens | £ 955,000 | 0.06 KM |
| 10c Bracknell Gardens | £ 1,075,000 | 0.06 KM |
| 16c Frognal Lane | £ 1,430,000 | 0.08 KM |