UN
Stone Road, Stafford, ST16
By Under The Hammer
£ 39,000
Reviews
3 out of 5 stars
Under The Hammer says ..
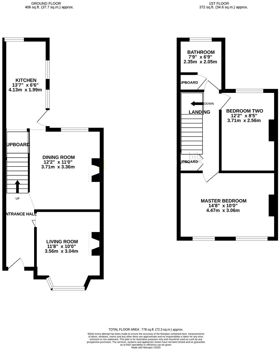
For sale by under the hammer online auction Wednesday 13th - Wednesday 13th August 2025. A vacant freehold two bedroom property located in Stafford. The property has an entrance hallway, lounge, dining room, kitchen, two bedrooms and an upstairs bathroom.
Property Oracle says ..
Therefore, we give this property 7 / 10. *Disclaimer: This is our option and does constitute a recommendation or financial advice. Do your own research. *
- Price
- 9
- Condition
- 7
- Location
- 7
- Land
- 7
- Bedrooms
- 2
- Bathrooms
- 1
- Sqft (est)
- 778.00
The heatmap indicates the level of crime in the area. The color of the heatmap indicates the crime severity and recency.
Metrics Year-on-Year
- Average area value
- 165,250.00 £Decreased by 0.79 %
- Est sale value
- 158,712.00 £Increased by 2.00 %
- Average area rental value
- 824.00 £/moIncreased by 29.97 %
- Est letting value
- 778.00 £/mo
- Est rental Yield
- 5.98 %Increased by 30.85 %
- Crime Rate
- 1.00 %Unchanged by 0.00 %
from 166,558.00 £
from 155,600.00 £
from 634.00 £/mo
from 0.00 £/mo
from 4.57 %
from 1.00 %
Agent Activity
Under The Hammer created the listing.
Nearby Schools
| Name | Type | Ofsted | Distance |
|---|---|---|---|
| St Patrick'S Catholic Primary School | Academy Converter | Requires improvement | 0.72 KM |
| Tillington Manor Primary School | Community School | Good | 0.78 KM |
| John Wheeldon Primary Academy | Academy Sponsor Led | Good | 1.19 KM |
| Sir Graham Balfour High School | Academy Converter | Good | 1.21 KM |
| Parkside Primary School | Academy Converter | Good | 1.27 KM |
Images
Nearby Streets
| Name | Average Price | Average Sqft | Distance |
|---|---|---|---|
| Glebe Avenue | £ 0 | 0 | 0.00 KM |
| George Street | £ 0 | 0 | 0.00 KM |
| Bettyhatch Lane | £ 0 | 0 | 0.00 KM |
| Pitt Street | £ 0 | 0 | 0.00 KM |
| Kenworthy Road | £ 0 | 0 | 0.00 KM |
Nearby Transport
| Name | NLC | TLC | Distance |
|---|---|---|---|
| Stafford | 1268 | STA | 1.55 KM |
Nearby Listings
| Address | Price | Type | Score | Distance |
|---|---|---|---|---|
| Stone Road, Stafford, ST16 | £ 39,000 | BUY | 7 / 10 | 0.00 KM |
| 117, Stone Road, Stafford, ST16 2RB, Stafford, ST16 2RB | £ 29,000 | BUY | 7 / 10 | 0.06 KM |
| Tillington Street, Stafford, ST16 | £ 170,000 | BUY | 6 / 10 | 0.17 KM |
| 39 Izaak Walton Close, Stafford, Staffordshire ST16 1HU | £ 75,000 | BUY | 5 / 10 | 0.18 KM |
| Tillington Street, Stafford | £ 150,000 | BUY | Unknown | 0.23 KM |
Nearby Properties
| Address | Price | Distance |
|---|---|---|
| 91 Stone Road | £ 140,000 | 0.00 KM |
| 83 Stone Road | £ 89,950 | 0.00 KM |
| 81 Stone Road | £ 138,000 | 0.00 KM |
| 87 Stone Road | £ 49,000 | 0.00 KM |
| 121 Stone Road | £ 60,000 | 0.00 KM |