Julie Philpot says ..
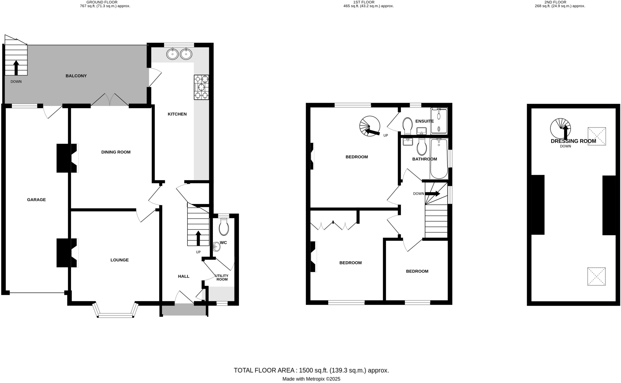
A superb, immaculately presented detached family home having been recently modernised and extended to provide generous accommodation with a private, landscaped rear garden and the added benefit of a drive and garage. The property is very stylish and tastefully presented throughout with many perio...
Property Oracle says ..
This property is a 3 bedroom, 2 bathroom detached house located in Kenilworth, Warwickshire. The property is well presented and appears to be in excellent condition, having undergone some modernisation. It benefits from a good-sized garden. Kenilworth is a desirable location with good schools and transport links, making this property potentially attractive to families. The list price is above the average for the area, but the larger size and modern condition of the property may justify this. More information on the property’s specific features and local comparable sales would be needed to fully assess the value.
Therefore, we give this property 7 / 10. *Disclaimer: This is our option and does constitute a recommendation or financial advice. Do your own research. *
- Price
- 7
- Condition
- 9
- Location
- 8
- Land
- 7
- Bedrooms
- 3
- Bathrooms
- 2
- Sqft (est)
- 1,725.00
- Lot (est)
- 1,500.00
The heatmap indicates the level of crime in the area. The color of the heatmap indicates the crime severity and recency.
Metrics Year-on-Year
- Average area value
- 450,680.00 £Increased by 2.66 %
- Est sale value
- 812,475.00 £Increased by 11.61 %
- Average area rental value
- 1,290.00 £/moIncreased by 8.77 %
- Est letting value
- 1,725.00 £/moUnchanged by 0.00 %
- Est rental Yield
- 3.43 %Increased by 5.86 %
- Crime Rate
- 16.00 %Unchanged by 0.00 %
Agent Activity
Julie Philpot created the listing.
Nearby Schools
| Name | Type | Ofsted | Distance |
|---|---|---|---|
| St Nicholas Cofe Primary School | Voluntary Controlled School | Good | 0.38 KM |
| Kenilworth Nursery School & Early Years Training Centre | Local Authority Nursery School | Outstanding | 0.72 KM |
| Thorns Community Infant School | Community School | Good | 0.88 KM |
| Crackley Hall School | Other Independent School | 0.92 KM | |
| Park Hill Junior School | Community School | Good | 1.33 KM |
Images
Nearby Streets
| Name | Average Price | Average Sqft | Distance |
|---|---|---|---|
| Glendale Avenue | £ 0 | 0 | 0.00 KM |
| Stoneleigh Avenue | £ 0 | 0 | 0.00 KM |
| Denemoor Court | £ 0 | 0 | 0.00 KM |
| Brooke Road | £ 750,000 | 0 | 0.00 KM |
| Field Close | £ 0 | 0 | 0.00 KM |
Nearby Transport
| Name | NLC | TLC | Distance |
|---|---|---|---|
| Kenilworth | 7985 | KNW | 0.60 KM |
| Tile Hill | 1035 | THL | 5.89 KM |
| Canley | 1129 | CNL | 6.31 KM |
| Warwick | 4600 | WRW | 6.93 KM |
| Leamington Spa | 4597 | LMS | 8.13 KM |
Nearby Listings
| Address | Price | Type | Score | Distance |
|---|---|---|---|---|
| Henry Street, Kenilworth | £ 495,000 | BUY | 7 / 10 | 0.00 KM |
| Henry Street, Kenilworth | £ 305,000 | BUY | 7 / 10 | 0.03 KM |
| Investment Oppurtunity rented at present. | £ 300,000 | BUY | 6 / 10 | 0.03 KM |
| Henry Street, Kenilworth, Warwickshire, CV8 | £ 310,000 | BUY | 6 / 10 | 0.05 KM |
| Henry Street, Kenilworth | £ 319,950 | BUY | 7 / 10 | 0.06 KM |
Nearby Properties
| Address | Price | Distance |
|---|---|---|
| 65 Henry Street | £ 216,000 | 0.03 KM |
| 27 Henry Street | £ 200,000 | 0.03 KM |
| 85 Henry Street | £ 99,950 | 0.03 KM |
| 13 Henry Street | £ 200,000 | 0.03 KM |
| 25 Henry Street | £ 112,000 | 0.03 KM |