Horn Road, Farnborough, Hampshire, GU14
By Prospect Estate Agency
£ 525,000
Reviews
3 out of 5 stars
Prospect Estate Agency says ..
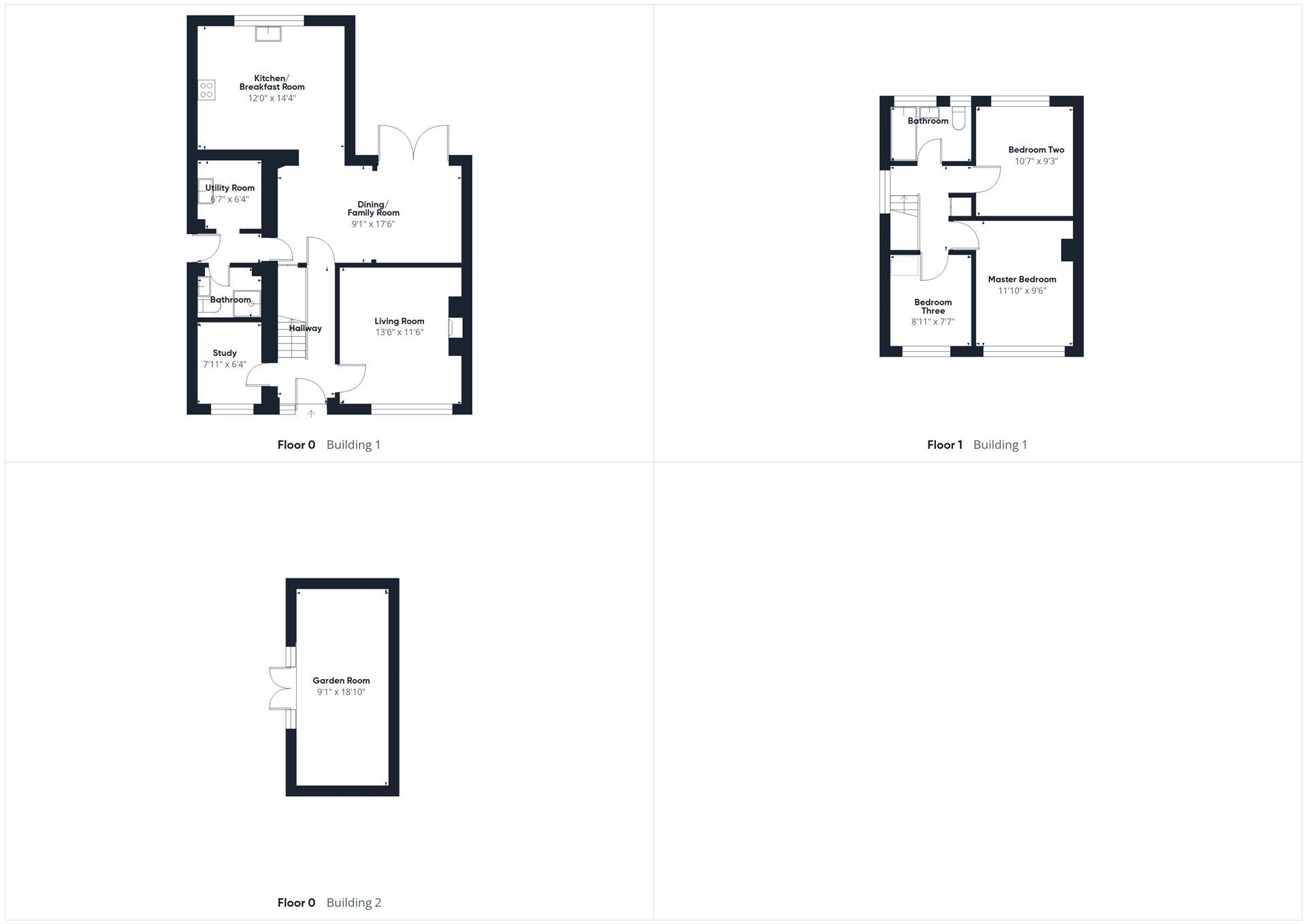
This vastly extended semi-detached family home is energy efficient beneficial from a 9.5kw battery powered solar panels and an electric car charging point. Situated within the popular West Heath area in Cove. Positioned within close proximity to allotments, Blunden Road recreational g...
Property Oracle says ..
This semi-detached property is located on Horn Road in Farnborough, Hampshire. The area benefits from relatively easy access to several railway stations, including Farnborough (Main), providing links to London and other parts of the country. There are also a number of well-regarded schools within a reasonable distance, including Cove Junior School and Manor Infant School, both rated as “Good” or “Outstanding” by Ofsted. The property itself appears to be in good condition, well-maintained and recently updated. It features a modern kitchen and updated bathrooms. The property also benefits from a well-maintained garden, offering outdoor space. While the plot size is not specified, the garden appears to be of a reasonable size for a semi-detached property. The list price of £525,000 is slightly above the average price for the area (£451,573), but considering the property’s condition, location, and the inclusion of a garden, it could be considered reasonable, particularly when compared to similar properties in the area. More information on the precise square footage of the property would help to refine this assessment.
Therefore, we give this property 7 / 10. *Disclaimer: This is our option and does constitute a recommendation or financial advice. Do your own research. *
- Price
- 7
- Condition
- 8
- Location
- 8
- Land
- 7
- Bedrooms
- 3
- Bathrooms
- 2
- Sqft (est)
- 1,096.99
The heatmap indicates the level of crime in the area. The color of the heatmap indicates the crime severity and recency.
Metrics Year-on-Year
- Average area value
- 477,500.00 £Increased by 0.19 %
- Est sale value
- 482,675.60 £Increased by 10.55 %
- Average area rental value
- 1,553.00 £/moDecreased by 15.04 %
- Est letting value
- 1,096.99 £/moUnchanged by 0.00 %
- Est rental Yield
- 3.90 %Decreased by 15.22 %
- Crime Rate
- 2.00 %Unchanged by 0.00 %
Agent Activity
Prospect Estate Agency created the listing.
Nearby Schools
| Name | Type | Ofsted | Distance |
|---|---|---|---|
| Cove Junior School | Community School | Good | 0.31 KM |
| Cove School | Foundation School | Good | 0.57 KM |
| Cove Infant School | Community School | Requires improvement | 0.61 KM |
| Manor Junior School | Community School | Good | 0.67 KM |
| Manor Infant School | Community School | Outstanding | 0.67 KM |
Images
Nearby Streets
| Name | Average Price | Average Sqft | Distance |
|---|---|---|---|
| West Heath Roundabout | £ 0 | 0 | 0.00 KM |
| St John's Road | £ 658,333 | 0 | 0.00 KM |
| Church Lane | £ 675,000 | 0 | 0.00 KM |
| Kendal Close | £ 0 | 0 | 0.00 KM |
| Vickers Close | £ 266,667 | 0 | 0.00 KM |
Nearby Transport
| Name | NLC | TLC | Distance |
|---|---|---|---|
| Farnborough (Main) | 5521 | FNB | 2.20 KM |
| Frimley | 5683 | FML | 3.54 KM |
| Farnborough North | 5688 | FNN | 3.63 KM |
| Blackwater | 5625 | BAW | 3.78 KM |
| North Camp | 5636 | NCM | 5.48 KM |
Nearby Listings
| Address | Price | Type | Score | Distance |
|---|---|---|---|---|
| Horn Road, Farnborough, Hampshire, GU14 | £ 525,000 | BUY | 7 / 10 | 0.00 KM |
| Blunden Road, Farnborough, Hampshire, GU14 | £ 500,000 | BUY | 7 / 10 | 0.10 KM |
| Horn Road, Farnborough, Hampshire, GU14 | £ 525,000 | BUY | 7 / 10 | 0.10 KM |
| Blunden Road, Farnborough | £ 500,000 | BUY | 6 / 10 | 0.14 KM |
| Credon Close, Farnborough, Hampshire, GU14 | £ 475,000 | BUY | 7 / 10 | 0.15 KM |
Nearby Properties
| Address | Price | Distance |
|---|---|---|
| 26 Horn Road | £ 225,000 | 0.01 KM |
| 28 Horn Road | £ 225,000 | 0.01 KM |
| 8 Horn Road | £ 420,000 | 0.01 KM |
| 16 Horn Road | £ 335,000 | 0.01 KM |
| 32 Horn Road | £ 215,000 | 0.01 KM |