DR
Oakdale Road, Herne Bay
By Dreams Estate Agency
£ 399,995
Reviews
3 out of 5 stars
Dreams Estate Agency says ..
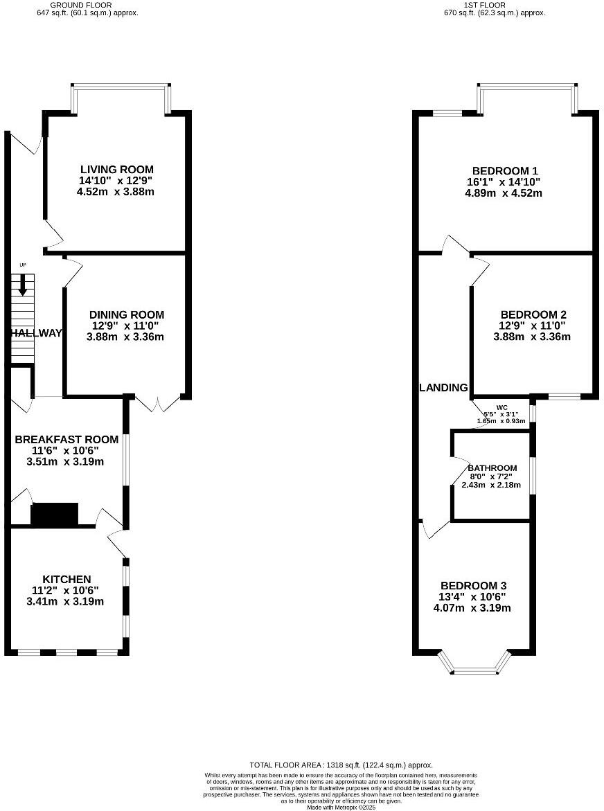
A stunning Edwardian home in a conservation area, blending timeless charm with modern style. High ceilings, bay windows, and versatile reception space create an inviting family haven. Close to the town centre and just moments from the beach, offering a truly enviable lifestyle.
Property Oracle says ..
Therefore, we give this property 7 / 10. *Disclaimer: This is our option and does constitute a recommendation or financial advice. Do your own research. *
- Price
- 8
- Condition
- 7
- Location
- 7
- Land
- 6
- Bedrooms
- 3
- Bathrooms
- 2
- Sqft (est)
- 1,166.20
The heatmap indicates the level of crime in the area. The color of the heatmap indicates the crime severity and recency.
Metrics Year-on-Year
- Average area value
- 408,070.00 £Increased by 4.43 %
- Est sale value
- 446,654.60 £Increased by 1.86 %
- Average area rental value
- 1,700.00 £/moDecreased by 13.57 %
- Est letting value
- 1,166.20 £/moUnchanged by 0.00 %
- Est rental Yield
- 5.00 %Decreased by 17.22 %
- Crime Rate
- 6.00 %Unchanged by 0.00 %
from 390,757.00 £
from 438,491.20 £
from 1,967.00 £/mo
from 1,166.20 £/mo
from 6.04 %
from 6.00 %
Agent Activity
Dreams Estate Agency created the listing.
Nearby Schools
| Name | Type | Ofsted | Distance |
|---|---|---|---|
| Herne Bay Junior School | Foundation School | Good | 0.68 KM |
| Herne Bay Infant School | Community School | Good | 0.70 KM |
| The Poppy Children'S Centre | Children's Centre | 1.15 KM | |
| Fairlight Glen Independent Special School | Other Independent Special School | Good | 1.62 KM |
| Herne Church Of England Junior School | Voluntary Aided School | Outstanding | 1.82 KM |
Images
Nearby Streets
| Name | Average Price | Average Sqft | Distance |
|---|---|---|---|
| Spenser Road | £ 295,000 | 0 | 0.00 KM |
| North Street | £ 0 | 0 | 0.00 KM |
| Prospect Hill | £ 662,500 | 0 | 0.00 KM |
| Swale Close | £ 0 | 0 | 0.00 KM |
| Eastgate Close | £ 450,000 | 0 | 0.00 KM |
Nearby Transport
| Name | NLC | TLC | Distance |
|---|---|---|---|
| Herne Bay | 5174 | HNB | 1.95 KM |
| Sturry | 5029 | STU | 7.49 KM |
| Chestfield And Swalecliffe | 5200 | CSW | 7.59 KM |
Nearby Listings
| Address | Price | Type | Score | Distance |
|---|---|---|---|---|
| Oakdale Road, Herne Bay | £ 399,995 | BUY | 7 / 10 | 0.00 KM |
| 12 Oakdale Road, Herne Bay, CT6 | £ 150,000 | BUY | 5 / 10 | 0.03 KM |
| Oakdale Road, Herne Bay | £ 175,000 | BUY | Unknown | 0.05 KM |
| Douglas Road, Herne Bay | £ 225,000 | BUY | 6 / 10 | 0.09 KM |
| Douglas Road, Herne Bay, CT6 | £ 220,000 | BUY | Unknown | 0.10 KM |
Nearby Properties
| Address | Price | Distance |
|---|---|---|
| 18 Oakdale Road | £ 120,000 | 0.01 KM |
| 27 Oakdale Road | £ 233,500 | 0.01 KM |
| 14 Oakdale Road | £ 225,000 | 0.01 KM |
| 32 Oakdale Road | £ 280,000 | 0.02 KM |
| 21b Oakdale Road | £ 99,000 | 0.02 KM |