West Street, Tan Tivvy Court West Street, GU27
By White & Brooks
£ 190,000
Reviews
2 out of 5 stars
White & Brooks says ..
This super one bedroom apartment can be found in the heart of popular Haslemere with its fantastic selection of cafes, restaurant, shops and cultur...
Property Oracle says ..
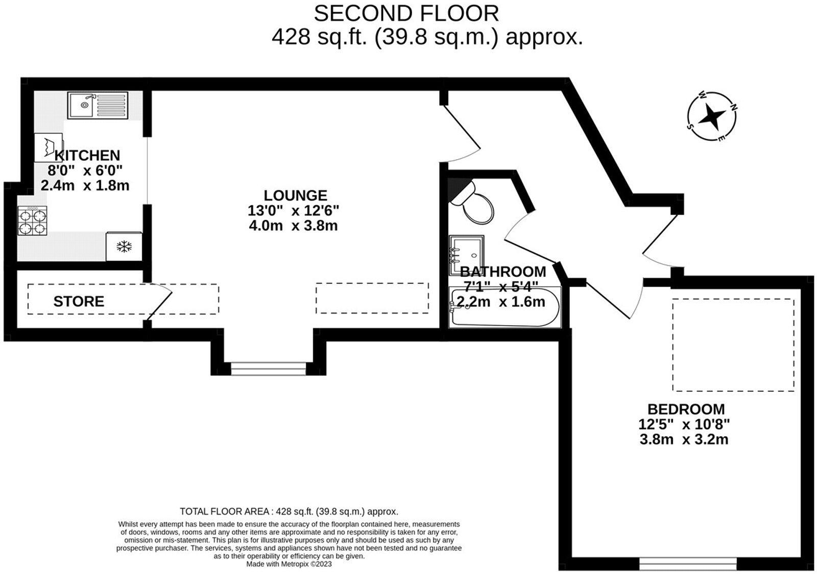
This is a one-bedroom flat located on West Street in Haslemere. The property is in a central location, close to local amenities and transportation links, including the Haslemere railway station. The flat comprises one bathroom, one bedroom, a living area, and a kitchen. While the kitchen might benefit from modernization, the property appears to be in generally good condition. With a square footage of 381.8 sqft, it offers a compact living space suitable for a single person or a couple. The lack of a garden or private outdoor space is a drawback, but the central location compensates for this. The asking price of £190,000 seems reasonable given the location and condition of the property, making it an attractive option for first-time buyers or investors.
Therefore, we give this property 5 / 10. *Disclaimer: This is our option and does constitute a recommendation or financial advice. Do your own research. *
- Price
- 8
- Condition
- 7
- Location
- 7
- Land
- 1
- Bedrooms
- 1
- Bathrooms
- 1
- Sqft (est)
- 381.80
The heatmap indicates the level of crime in the area. The color of the heatmap indicates the crime severity and recency.
Metrics Year-on-Year
- Average area value
- 1,062,273.00 £Increased by 17.03 %
- Est sale value
- 110,340.20 £Decreased by 72.18 %
- Average area rental value
- 2,072.00 £/moDecreased by 5.86 %
- Est letting value
- 0.00 £/moDecreased by 100.00 %
- Est rental Yield
- 2.34 %Decreased by 19.59 %
- Crime Rate
- 88.00 %Unchanged by 0.00 %
Agent Activity
White & Brooks created the listing.
Nearby Schools
| Name | Type | Ofsted | Distance |
|---|---|---|---|
| St Bartholomew'S Cofe Aided Primary School | Voluntary Aided School | Good | 0.68 KM |
| Tennyson'S Sure Start Children'S Centre | Children's Centre | 0.79 KM | |
| St Ives School | Other Independent School | 1.40 KM | |
| The Royal School | Other Independent School | 2.34 KM | |
| Shottermill Infant School | Community School | Outstanding | 2.44 KM |
Images
Nearby Streets
| Name | Average Price | Average Sqft | Distance |
|---|---|---|---|
| A286 | £ 0 | 0 | 0.00 KM |
| George Denyer Close | £ 0 | 0 | 0.00 KM |
| Penfold Manor | £ 617,475 | 0 | 0.00 KM |
| Fieldway | £ 0 | 0 | 0.00 KM |
| Rosemary Court | £ 0 | 0 | 0.00 KM |
Nearby Transport
| Name | NLC | TLC | Distance |
|---|---|---|---|
| Haslemere | 5633 | HSL | 1.01 KM |
| Witley | 5640 | WTY | 8.67 KM |
Nearby Listings
| Address | Price | Type | Score | Distance |
|---|---|---|---|---|
| West Street, Tan Tivvy Court West Street, GU27 | £ 190,000 | BUY | 5 / 10 | 0.00 KM |
| Tan Tivvy Court, West Street, Haslemere, Surrey, GU27 | £ 267,500 | BUY | 6 / 10 | 0.01 KM |
| West Street, Haslemere, Surrey, GU27 | £ 195,000 | BUY | 4 / 10 | 0.02 KM |
| West Street, Haslemere, Surrey, GU27 | £ 199,950 | BUY | 5 / 10 | 0.07 KM |
| West Street, Haslemere | £ 595,000 | BUY | 7 / 10 | 0.07 KM |
Nearby Properties
| Address | Price | Distance |
|---|---|---|
| 11c High Street | £ 195,000 | 0.08 KM |
| 11b High Street | £ 172,500 | 0.08 KM |
| 10a High Street | £ 220,000 | 0.15 KM |
| 28 Lower Street | £ 322,500 | 0.16 KM |
| 30 Lower Street | £ 268,000 | 0.16 KM |